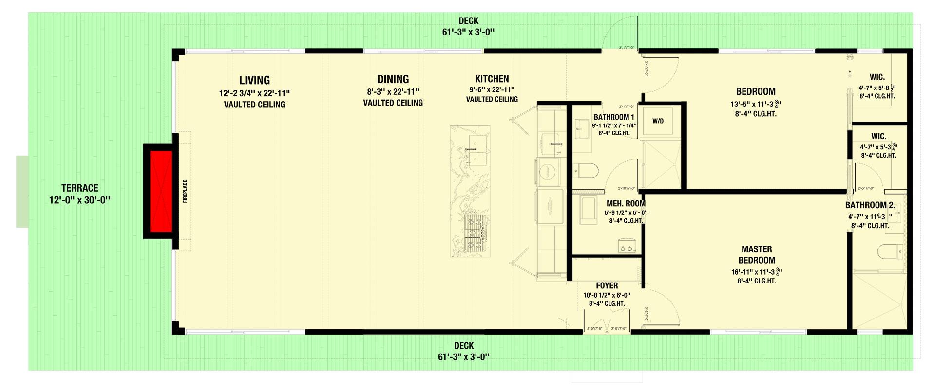
Exclusive

Total Heated Area
1,488 sq. ft.
1st Floor
1,488 sq. ft.
Deck & Porch
713 sq. ft.
Bedrooms
2
Full bathrooms
2
Standard Foundations
Crawl
Exterior Walls
2x6
Width
74' 0"
Depth
30' 0"
Max Ridge Height
21' 6"
Lower Level
8' 4"
Room
Ceiling Type
Height
Living Room
Vaulted
9' 9''
Dining Room
Vaulted
9' 9''
Kitchen
Vaulted
9' 9''
Primary Pitch
10 on 12
Framing Type
Truss
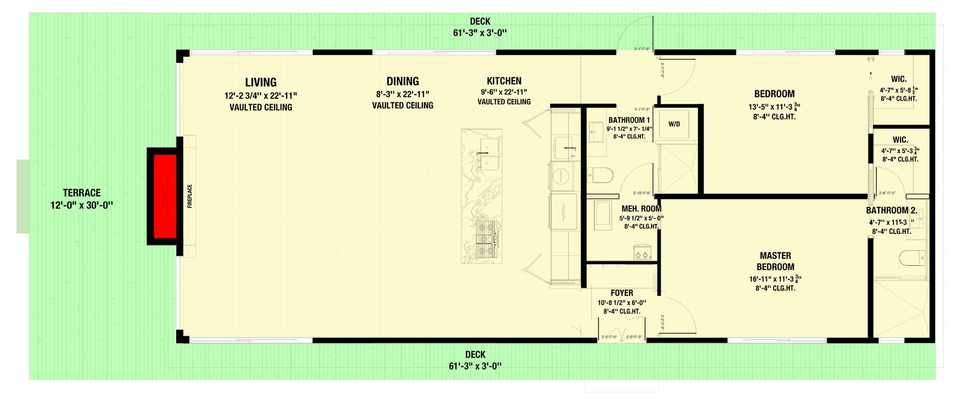
Total Heated Area
1,488 sq. ft.
1st Floor
1,488 sq. ft.
Deck & Porch
713 sq. ft.
Bedrooms
2
Full bathrooms
2
Standard Foundations
Crawl
Exterior Walls
2x6
Width
74' 0"
Depth
30' 0"
Max Ridge Height
21' 6"
Lower Level
8' 4"
Room
Ceiling Type
Height
Living Room
Vaulted
9' 9''
Dining Room
Vaulted
9' 9''
Kitchen
Vaulted
9' 9''
Primary Pitch
10 on 12
Framing Type
Truss