


Starting at
Ready to Get Started?
Select your plan set options before checkout.
Total Heated Area
2,616 sq. ft.
1st Floor
1,895 sq. ft.
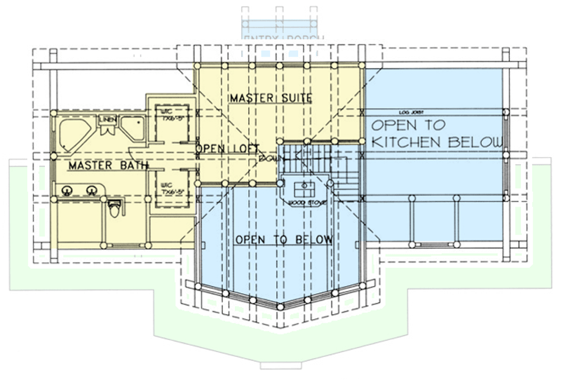
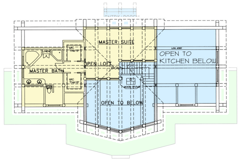
2nd Floor
721 sq. ft.
Basement Unfinished
841 sq. ft.
Bedrooms
3
Full bathrooms
2
Standard Foundations
Walkout
Exterior Walls
Log
Width
66' 0"
Depth
44' 11"
Max Ridge Height
24' 11"
First Floor
11' 6"
Second Floor
9'
Primary Pitch
12 on 12
Secondary Pitch
N on N
Framing Type
Truss
Total Heated Area
2,616 sq. ft.
1st Floor
1,895 sq. ft.
2nd Floor
721 sq. ft.
Basement Unfinished
841 sq. ft.
Bedrooms
3
Full bathrooms
2
Standard Foundations
Walkout
Exterior Walls
Log
Width
66' 0"
Depth
44' 11"
Max Ridge Height
24' 11"
First Floor
11' 6"
Second Floor
9'
Primary Pitch
12 on 12
Secondary Pitch
N on N
Framing Type
Truss