

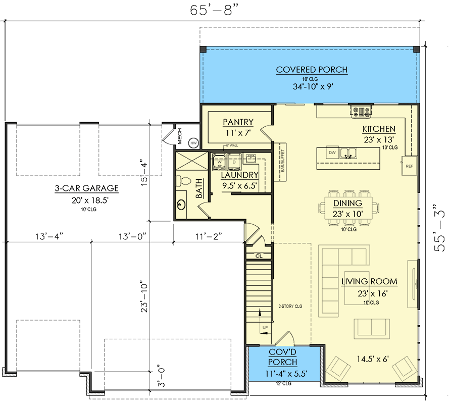
Total Heated Area
3,702 sq. ft.
1st Floor
1,342 sq. ft.
2nd Floor
2,360 sq. ft.
Porch, Front
62 sq. ft.
Porch, Rear
314 sq. ft.
Deck
418 sq. ft.
Balcony / Veranda
111 sq. ft.
Bedrooms
4 or 5
Full bathrooms
4
Standard Foundations
Slab
Exterior Walls
2x4
Optional Type(s)
2x6
Width
65' 8"
Depth
54' 10"
Max Ridge Height
37' 4"
Type
Attached
Area
1426 sq. ft.
Count
5 Cars
Entry Location
Front, Rear
First Floor
10'
Second Floor
10'
Primary Pitch
14 on 12
Secondary Pitch
12 on 12
Framing Type
Stick
Total Heated Area
3,702 sq. ft.
1st Floor
1,342 sq. ft.
2nd Floor
2,360 sq. ft.
Porch, Front
62 sq. ft.
Porch, Rear
314 sq. ft.
Deck
418 sq. ft.
Balcony / Veranda
111 sq. ft.
Bedrooms
4 or 5
Full bathrooms
4
Standard Foundations
Slab
Exterior Walls
2x4
Optional Type(s)
2x6
Width
65' 8"
Depth
54' 10"
Max Ridge Height
37' 4"
Type
Attached
Area
1426 sq. ft.
Count
5 Cars
Entry Location
Front, Rear
First Floor
10'
Second Floor
10'
Primary Pitch
14 on 12
Secondary Pitch
12 on 12
Framing Type
Stick