

Total Heated Area
3,188 sq. ft.
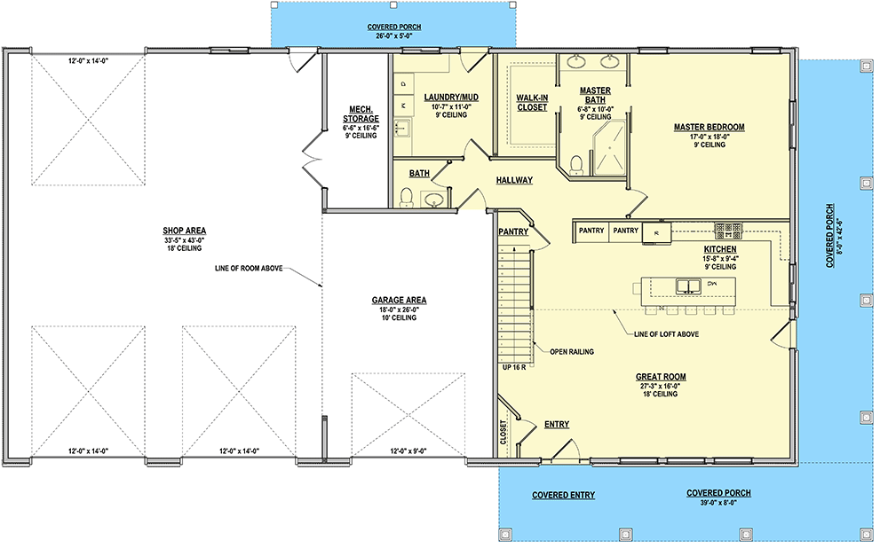
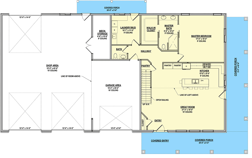
1st Floor
1,604 sq. ft.
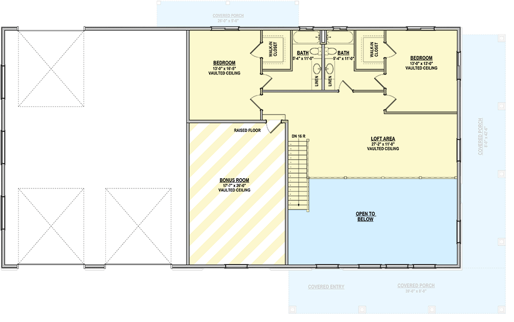
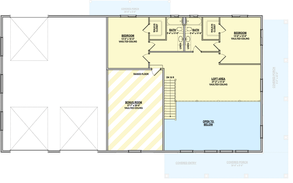
2nd Floor
1,124 sq. ft.
Bonus
460 sq. ft.
Loft
324 sq. ft.
Porch, Front
312 sq. ft.
Porch, Rear
130 sq. ft.
Porch, Combined
782 sq. ft.
Bedrooms
3
Full bathrooms
3
Half bathrooms
1
Standard Foundations
Slab
Exterior Walls
2x6
Width
84' 0"
Depth
44' 0"
Max Ridge Height
25' 0"
Type
Attached, RV Garage
Area
2094 sq. ft.
Count
3 Cars
Entry Location
Front, Rear
First Floor
9'
Second Floor
8'
Primary Pitch
4 on 12
Secondary Pitch
4 on 12
Framing Type
Truss
Total Heated Area
3,188 sq. ft.
1st Floor
1,604 sq. ft.
2nd Floor
1,124 sq. ft.
Bonus
460 sq. ft.
Loft
324 sq. ft.
Porch, Front
312 sq. ft.
Porch, Rear
130 sq. ft.
Porch, Combined
782 sq. ft.
Bedrooms
3
Full bathrooms
3
Half bathrooms
1
Standard Foundations
Slab
Exterior Walls
2x6
Width
84' 0"
Depth
44' 0"
Max Ridge Height
25' 0"
Type
Attached, RV Garage
Area
2094 sq. ft.
Count
3 Cars
Entry Location
Front, Rear
First Floor
9'
Second Floor
8'
Primary Pitch
4 on 12
Secondary Pitch
4 on 12
Framing Type
Truss