

Total Heated Area
3,055 sq. ft.
1st Floor
1,982 sq. ft.
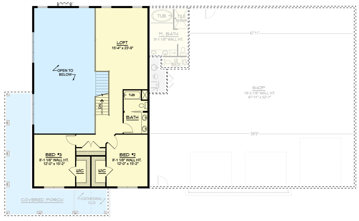
2nd Floor
1,073 sq. ft.
Porch, Combined
463 sq. ft.
Bedrooms
3
Full bathrooms
2
Half bathrooms
2
Standard Foundations
Slab
Exterior Walls
2x6
Width
102' 0"
Depth
61' 0"
Max Ridge Height
27' 7"
Type
Attached, RV Garage
Area
3026 sq. ft.
Count
3, 4, 5, or 6 Cars
Entry Location
Front
First Floor
9'
Second Floor
8'
Primary Pitch
4 on 12
Secondary Pitch
7 on 12
Framing Type
Truss
Total Heated Area
3,055 sq. ft.
1st Floor
1,982 sq. ft.
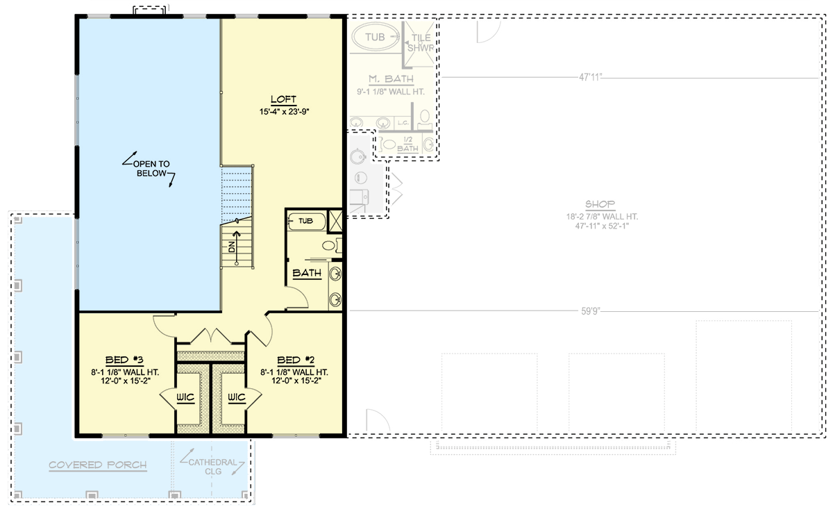
2nd Floor
1,073 sq. ft.
Porch, Combined
463 sq. ft.
Bedrooms
3
Full bathrooms
2
Half bathrooms
2
Standard Foundations
Slab
Exterior Walls
2x6
Width
102' 0"
Depth
61' 0"
Max Ridge Height
27' 7"
Type
Attached, RV Garage
Area
3026 sq. ft.
Count
3, 4, 5, or 6 Cars
Entry Location
Front
First Floor
9'
Second Floor
8'
Primary Pitch
4 on 12
Secondary Pitch
7 on 12
Framing Type
Truss