


Total Heated Area
2,923 sq. ft.
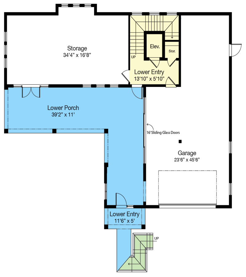
Lower Level
91 sq. ft.
1st Floor
1,983 sq. ft.
2nd Floor
849 sq. ft.
Porch, Rear
540 sq. ft.
Entry
55 sq. ft.
Bedrooms
3
Full bathrooms
3
Half bathrooms
1
Standard Foundations
Piling
Exterior Walls
Block / CMU (main floor)
Width
64' 0"
Depth
64' 8"
Max Ridge Height
38' 8"
Type
Attached, Drive Under
Count
2 Cars
Entry Location
Front
First Floor
10'
Second Floor
9'
Primary Pitch
5 on 12
Secondary Pitch
2 on 12
Framing Type
Truss
Total Heated Area
2,923 sq. ft.
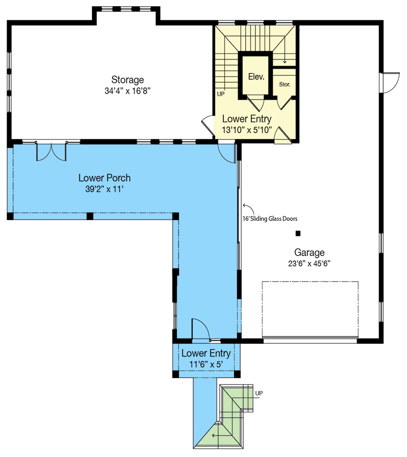
Lower Level
91 sq. ft.
1st Floor
1,983 sq. ft.
2nd Floor
849 sq. ft.
Porch, Rear
540 sq. ft.
Entry
55 sq. ft.
Bedrooms
3
Full bathrooms
3
Half bathrooms
1
Standard Foundations
Piling
Exterior Walls
Block / CMU (main floor)
Width
64' 0"
Depth
64' 8"
Max Ridge Height
38' 8"
Type
Attached, Drive Under
Count
2 Cars
Entry Location
Front
First Floor
10'
Second Floor
9'
Primary Pitch
5 on 12
Secondary Pitch
2 on 12
Framing Type
Truss