LogoLogo TaglineLogo Tagline
Loading...
Plan 350087GH

3-Bed Log Cabin House Plan with Two-Story Great Room - 2346 Sq Ft

Heated S.F.
2,346
Beds
3
Baths
2.5 - 3.5
Stories
2

Floor Plan

Plan 350087GH

Main Level
Main Level
2nd Floor
2nd Floor
Unfinished Basement
Unfinished Basement

Plan 350087GH

M-F 9am-5pm EST |

1-203-761-8500

Main Level

Plan 350087GH: 3-Bed Log Cabin House Plan with Two-Story Great Room - 2346 Sq Ft - Floor Plan - Main Level - Country, Log Cabin, Mountain

2nd Floor

Plan 350087GH: 3-Bed Log Cabin House Plan with Two-Story Great Room - 2346 Sq Ft - Floor Plan - 2nd Floor - Country, Log Cabin, Mountain

Unfinished Basement

Plan 350087GH: 3-Bed Log Cabin House Plan with Two-Story Great Room - 2346 Sq Ft - Floor Plan - Unfinished Basement - Country, Log Cabin, Mountain

Plan Details

  • This log cabin house plan offers you 2,346 square feet of heated living space with 3 beds and 2.5 baths.
  • Architectural Designs' primary focus is to make the process of finding and buying house plans more convenient for those interested in constructing new homes - single family and multi-family ones - as well as garages, pool houses and even sheds and backyard offices.
  • Our website offers a vast collection of home designs, encompassing various architectural styles, sizes, and features, which can be customized to meet specific needs and preferences
  • We curate and add to our design portfolio every day as we work with hundreds of residential building designers and architects to bring you the most diverse and best house plans available.
  • We can modify any house plan you see on our site. Learn more about modifications.

What's Included

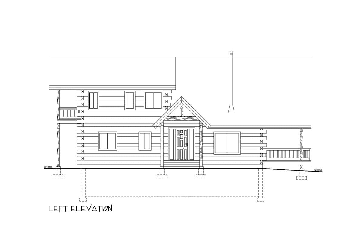
  • Exterior Elevations:  The exterior elevations provide exterior views of the house and call out the exterior finish materials, such as siding, stucco, brick, stone, etc. This page also shows roof pitches and materials, and decorative elements, such as columns and window shutters. Sometimes window and door sizes are also shown here.
  • Floor Plans:  The floor plan shows how each room is laid out on each floor of the house. In most cases, the floor plan will include wall sizes, room dimensions, notes about ceiling design, window and door locations and sizes, and other structural layout notes and details.
  • Foundation Plan: This page provides a detailed foundation drawing, including the thickness of the foundation walls, how the foundation is built, footing and wall placement, Rebar schedule, as well as other construction notes and details. This page may also include a floor framing plan.
  • Cross Sections: Cross sections are views from the top to the bottom of the house plan showing structural details related to the construction of the home. They will show the composition of the foundation, interior and exterior walls, roof, floor and stair details. They also show rooflines, ceiling heights, and the relationships between floors. Cross sections may be on a separate page or on various pages throughout the home plan.
  • Basic Electric: This page shows the locations of outlets, switches, and fixtures. It may be on a separate page, or located on the floor plan page.
  • Simple Plumbing: This page shows the locations of the bathtubs, showers, toilets, and sinks. This may be found on the floor plan, or it might be on a separate page.
  • Details: This page includes the structural details for the construction of the house.

What's Not Included

  • Architectural or Engineering Stamp - handled locally if required
  • Site Plan - handled locally when required
  • Mechanical Drawings (location of heating and air equipment and duct work) - your subcontractors handle this
  • Plumbing Drawings (drawings showing the actual plumbing pipe sizes and locations) - your subcontractors handle this
  • Energy calculations - handled locally when required

Starting at

Loading...
Price Match Guarantee
What's included?

FORMAT & LICENSE

Choose an option

$0

Not sure what to choose?

Pointer link icon

FOUNDATION

Choose an option

+$0

OPTIONS

Choose Additional Options

+$0

Loading...

Modify this Plan

Receive a free modification quote within 3 business days.

Loading...

Start with a Cost Report

Calculate the cost to build & furnish your home.

Loading...
Loading...

Square Footage Breakdown

Total Heated Area

2,346 sq. ft.

1st Floor

1,350 sq. ft.

2nd Floor

996 sq. ft.

Basement Unfinished

1,350 sq. ft.

Beds/Baths

Bedrooms

3

Full bathrooms

2 or 3

Half bathrooms

1

Foundation Type

Standard Foundations

Basement

Exterior Walls

Exterior Walls

Log

Dimensions

Width

30' 0"

Depth

45' 0"

Max Ridge Height

29' 5"

Ceiling Heights

Lower Level

8' 1"

First Floor

9'

Second Floor

8' 4"

Room

Ceiling Type

Height

Living Room

Vaulted

9' 0''

Loft

Vaulted

8' 4''

Master Bedroom

Vaulted

8' 4''

Roof Details

Primary Pitch

12 on 12

Secondary Pitch

5 on 12

Framing Type

SIPs

Architectural Style

Country

Plan Collections

Square Footage Breakdown

Total Heated Area

2,346 sq. ft.

1st Floor

1,350 sq. ft.

2nd Floor

996 sq. ft.

Basement Unfinished

1,350 sq. ft.

Beds/Baths

Bedrooms

3

Full bathrooms

2 or 3

Half bathrooms

1

Foundation Type

Standard Foundations

Basement

Exterior Walls

Exterior Walls

Log

Dimensions

Width

30' 0"

Depth

45' 0"

Max Ridge Height

29' 5"

Ceiling Heights

Lower Level

8' 1"

First Floor

9'

Second Floor

8' 4"

Room

Ceiling Type

Height

Living Room

Vaulted

9' 0''

Loft

Vaulted

8' 4''

Master Bedroom

Vaulted

8' 4''

Roof Details

Primary Pitch

12 on 12

Secondary Pitch

5 on 12

Framing Type

SIPs

Architectural Style

Plan Collections

* Please note that all sale prices and promotions featured on our website are subject to change without prior notice. While we strive to provide accurate and up-to-date information, occasional discrepancies may occur due to factors beyond our control. We encourage you to verify all details, including pricing and availability, before making any purchase. Exclusions or restrictions may apply to specific promotions. We reserve the right to modify or cancel any sale at our discretion. Thank you for your understanding and happy shopping!Let's go back to the top.