


Total Heated Area
3,042 sq. ft.
1st Floor
1,797 sq. ft.
2nd Floor
1,245 sq. ft.
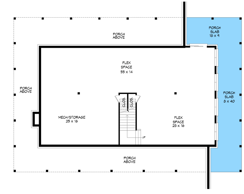
Basement Unfinished
1,422 sq. ft.
Porch, Front
577 sq. ft.
Porch, Rear
650 sq. ft.
Porch, Combined
1,739 sq. ft.
Balcony / Veranda
324 sq. ft.
Bedrooms
3
Full bathrooms
2
Half bathrooms
1
Standard Foundations
Walkout
Exterior Walls
2x6
Width
72' 2"
Depth
49' 0"
Max Ridge Height
27' 10"
Lower Level
9'
First Floor
9'
Primary Pitch
10 on 12
Secondary Pitch
6 on 12
Framing Type
Stick
Total Heated Area
3,042 sq. ft.
1st Floor
1,797 sq. ft.
2nd Floor
1,245 sq. ft.
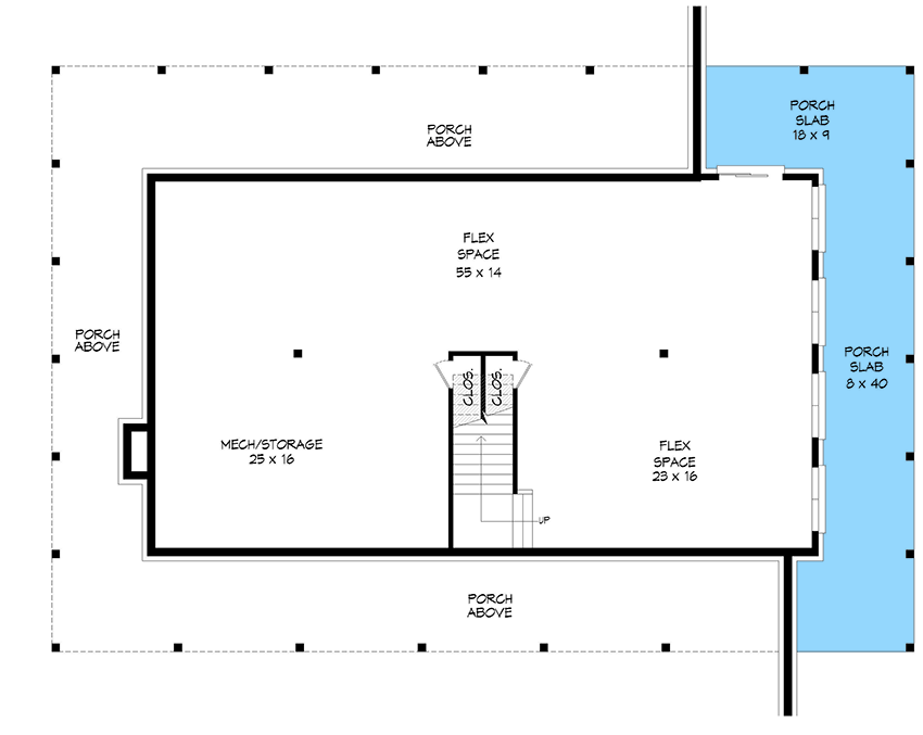
Basement Unfinished
1,422 sq. ft.
Porch, Front
577 sq. ft.
Porch, Rear
650 sq. ft.
Porch, Combined
1,739 sq. ft.
Balcony / Veranda
324 sq. ft.
Bedrooms
3
Full bathrooms
2
Half bathrooms
1
Standard Foundations
Walkout
Exterior Walls
2x6
Width
72' 2"
Depth
49' 0"
Max Ridge Height
27' 10"
Lower Level
9'
First Floor
9'
Primary Pitch
10 on 12
Secondary Pitch
6 on 12
Framing Type
Stick