

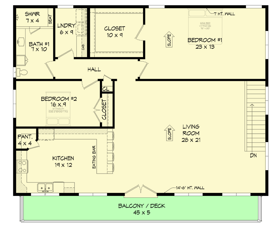
Total Heated Area
2,300 sq. ft.
1st Floor
572 sq. ft.
2nd Floor
1,728 sq. ft.
Balcony / Veranda
225 sq. ft.
Bedrooms
2
Full bathrooms
2
Standard Foundations
Slab
Exterior Walls
2x6
Width
48' 0"
Depth
36' 0"
Max Ridge Height
29' 5"
Type
Attached
Area
1156 sq. ft.
Count
3 Cars
Entry Location
Front
First Floor
12'
Second Floor
7'
Primary Pitch
2.5 on 12
Framing Type
Stick
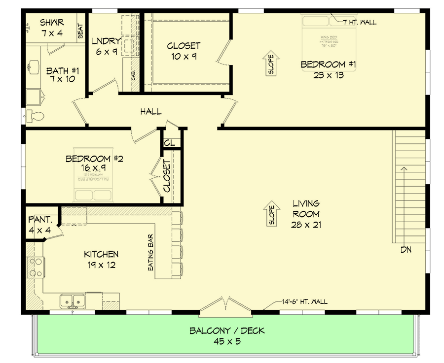
Total Heated Area
2,300 sq. ft.
1st Floor
572 sq. ft.
2nd Floor
1,728 sq. ft.
Balcony / Veranda
225 sq. ft.
Bedrooms
2
Full bathrooms
2
Standard Foundations
Slab
Exterior Walls
2x6
Width
48' 0"
Depth
36' 0"
Max Ridge Height
29' 5"
Type
Attached
Area
1156 sq. ft.
Count
3 Cars
Entry Location
Front
First Floor
12'
Second Floor
7'
Primary Pitch
2.5 on 12
Framing Type
Stick