


Total Heated Area
4,996 sq. ft.
1st Floor
1,885 sq. ft.
2nd Floor
2,199 sq. ft.
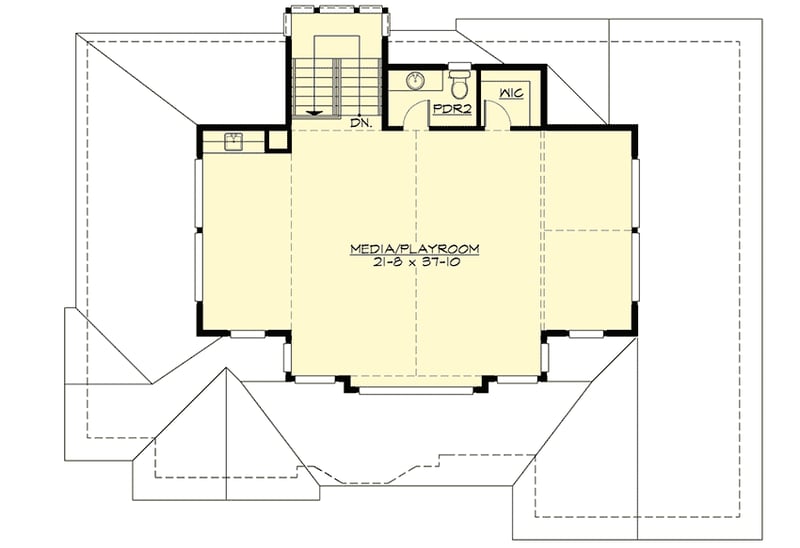
3rd Floor
912 sq. ft.
Bedrooms
5
Full bathrooms
4
Half bathrooms
2
Standard Foundations
Crawl
Exterior Walls
2x6
Width
64' 0"
Depth
53' 0"
Max Ridge Height
33' 2"
Type
Attached
Area
713 sq. ft.
Count
3 Cars
Entry Location
Side
First Floor
10'
Second Floor
9'
8' 0''
Primary Pitch
4 on 12
Framing Type
Truss
Total Heated Area
4,996 sq. ft.
1st Floor
1,885 sq. ft.
2nd Floor
2,199 sq. ft.
3rd Floor
912 sq. ft.
Bedrooms
5
Full bathrooms
4
Half bathrooms
2
Standard Foundations
Crawl
Exterior Walls
2x6
Width
64' 0"
Depth
53' 0"
Max Ridge Height
33' 2"
Type
Attached
Area
713 sq. ft.
Count
3 Cars
Entry Location
Side
First Floor
10'
Second Floor
9'
8' 0''
Primary Pitch
4 on 12
Framing Type
Truss