

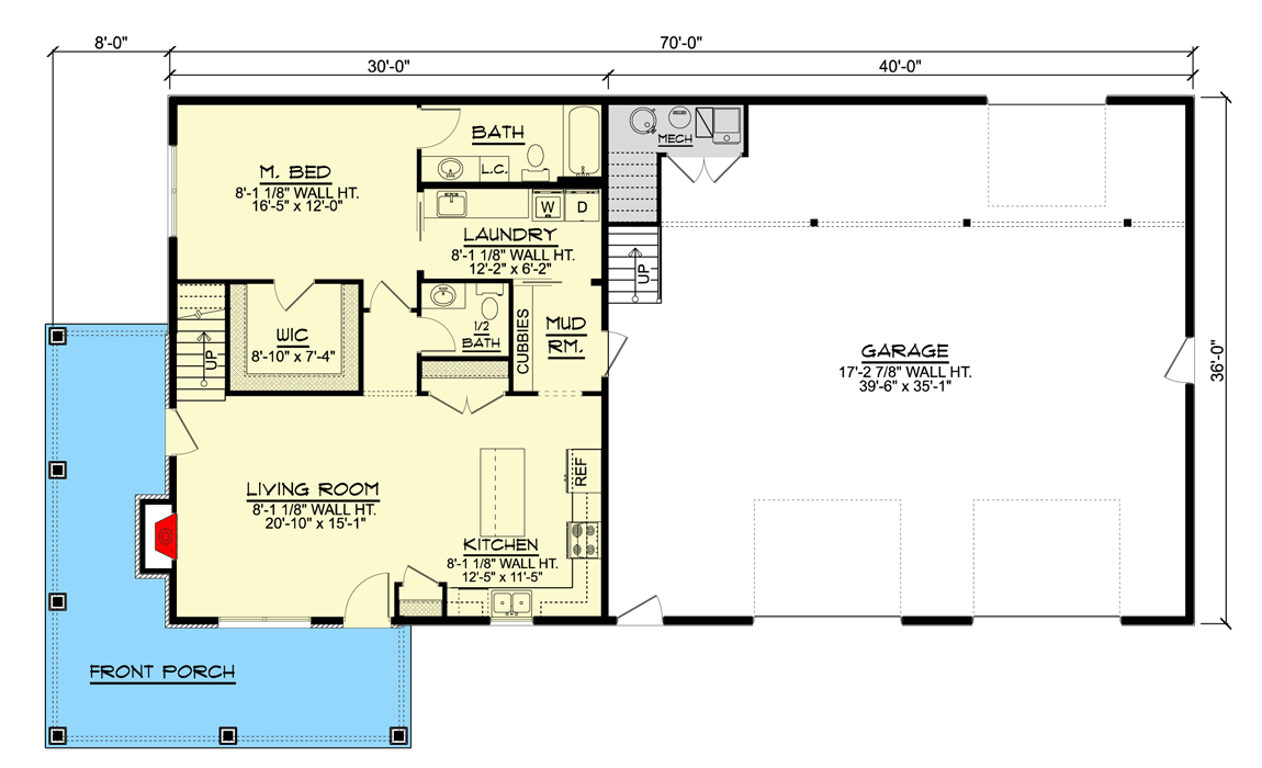
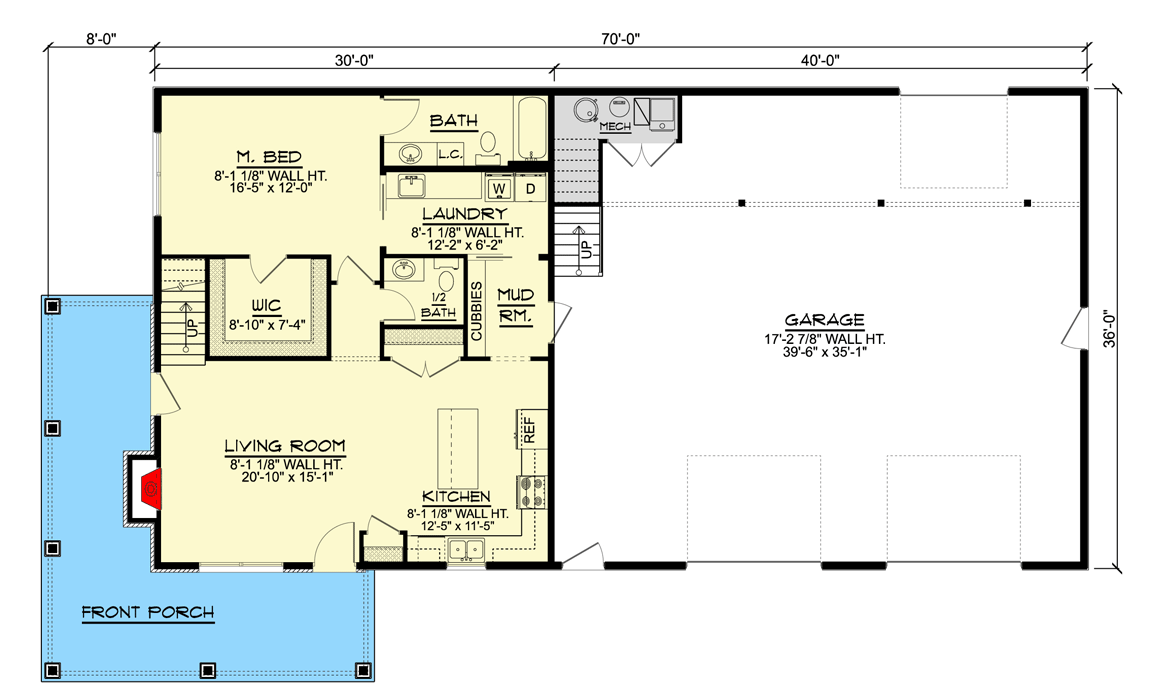
Total Heated Area
2,152 sq. ft.
1st Floor
1,080 sq. ft.
2nd Floor
1,072 sq. ft.
Porch, Combined
371 sq. ft.
Storage
362 sq. ft.
Bedrooms
4
Full bathrooms
2
Half bathrooms
1
Standard Foundations
Slab
Exterior Walls
2x6
Width
78' 0"
Depth
44' 0"
Max Ridge Height
23' 0"
Type
Attached
Area
1440 sq. ft.
Count
3 Cars
First Floor
8'
Second Floor
8'
Primary Pitch
4 on 12
Framing Type
Truss
Total Heated Area
2,152 sq. ft.
1st Floor
1,080 sq. ft.
2nd Floor
1,072 sq. ft.
Porch, Combined
371 sq. ft.
Storage
362 sq. ft.
Bedrooms
4
Full bathrooms
2
Half bathrooms
1
Standard Foundations
Slab
Exterior Walls
2x6
Width
78' 0"
Depth
44' 0"
Max Ridge Height
23' 0"
Type
Attached
Area
1440 sq. ft.
Count
3 Cars
First Floor
8'
Second Floor
8'
Primary Pitch
4 on 12
Framing Type
Truss