


Total Heated Area
2,063 sq. ft.
1st Floor
1,056 sq. ft.
2nd Floor
1,007 sq. ft.
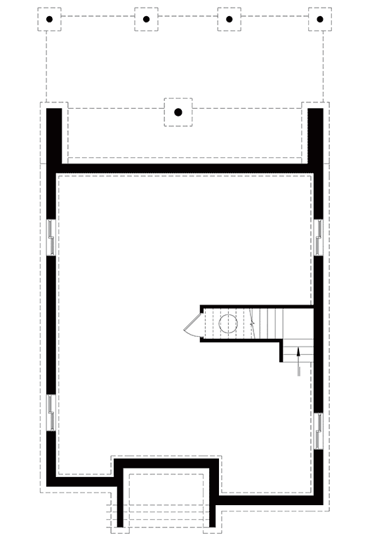
Basement Unfinished
1,056 sq. ft.
Porch, Combined
160 sq. ft.
Bedrooms
3 or 4
Full bathrooms
2
Standard Foundations
Basement
Exterior Walls
2x6
Width
30' 0"
Depth
43' 0"
Max Ridge Height
22' 8"
First Floor
8'
Second Floor
9'
Framing Type
Truss
Total Heated Area
2,063 sq. ft.
1st Floor
1,056 sq. ft.
2nd Floor
1,007 sq. ft.
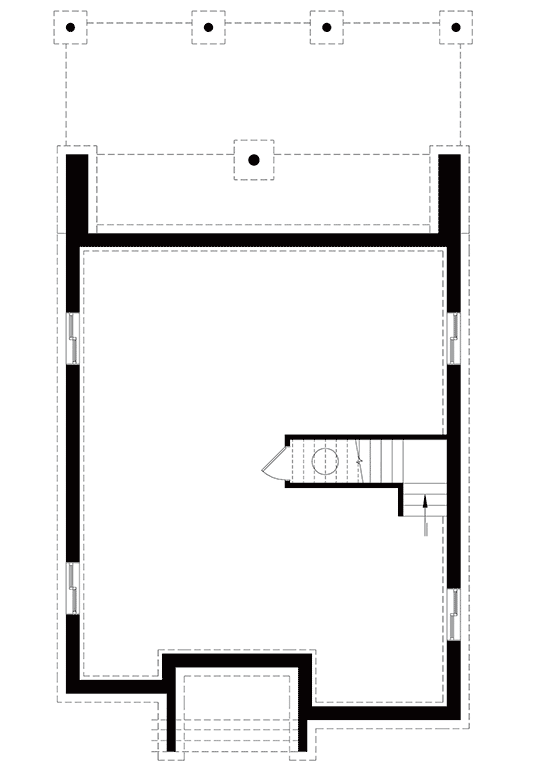
Basement Unfinished
1,056 sq. ft.
Porch, Combined
160 sq. ft.
Bedrooms
3 or 4
Full bathrooms
2
Standard Foundations
Basement
Exterior Walls
2x6
Width
30' 0"
Depth
43' 0"
Max Ridge Height
22' 8"
First Floor
8'
Second Floor
9'
Framing Type
Truss