Exclusive



Total Heated Area
3,024 sq. ft.
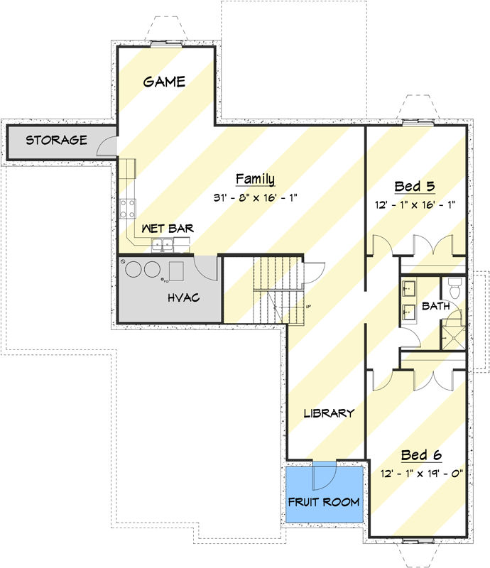
Lower Level
1,856 sq. ft.
1st Floor
2,029 sq. ft.
2nd Floor
995 sq. ft.
Porch, Front
71 sq. ft.
Deck
277 sq. ft.
Bedrooms
4
Full bathrooms
2
Half bathrooms
1
Standard Foundations
Basement
Exterior Walls
2x6
Width
62' 0"
Depth
54' 0"
Max Ridge Height
33' 10"
Type
Attached
Area
800 sq. ft.
Count
3 Cars
Entry Location
Side
First Floor
9'
Second Floor
9'
Primary Pitch
8 on 12
Framing Type
Stick And Truss
Total Heated Area
3,024 sq. ft.
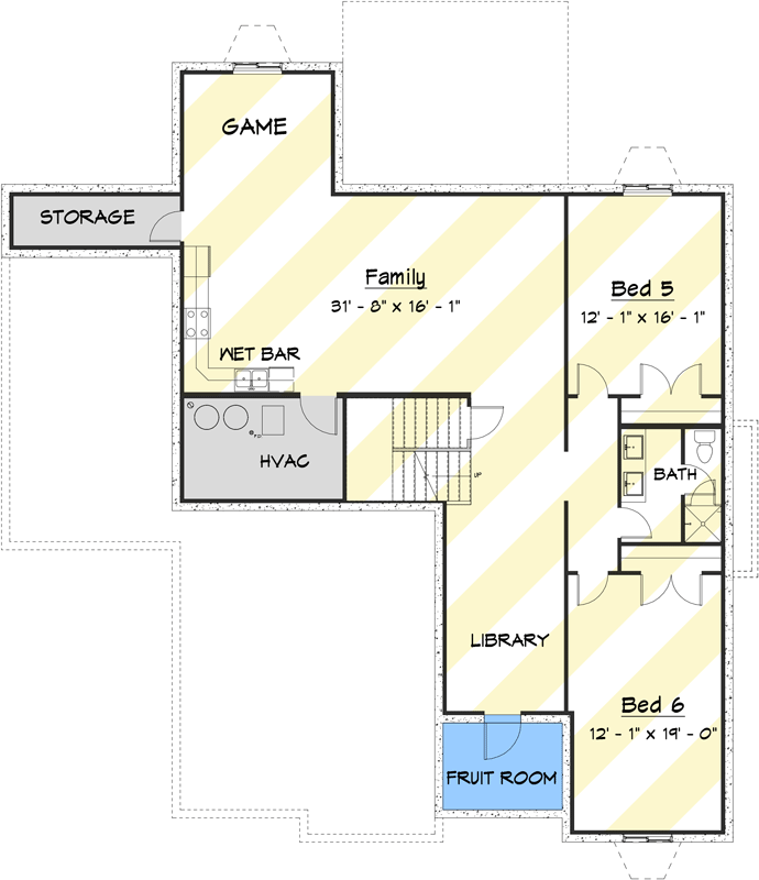
Lower Level
1,856 sq. ft.
1st Floor
2,029 sq. ft.
2nd Floor
995 sq. ft.
Porch, Front
71 sq. ft.
Deck
277 sq. ft.
Bedrooms
4
Full bathrooms
2
Half bathrooms
1
Standard Foundations
Basement
Exterior Walls
2x6
Width
62' 0"
Depth
54' 0"
Max Ridge Height
33' 10"
Type
Attached
Area
800 sq. ft.
Count
3 Cars
Entry Location
Side
First Floor
9'
Second Floor
9'
Primary Pitch
8 on 12
Framing Type
Stick And Truss