Exclusive


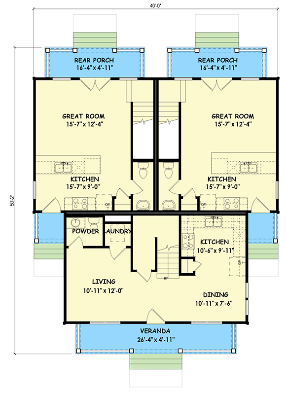
Total Heated Area
2,644 sq. ft.
1st Floor
1,416 sq. ft.
2nd Floor
1,228 sq. ft.
Porch, Front
184 sq. ft.
Porch, Rear
164 sq. ft.
Balcony / Veranda
164 sq. ft.
Bedrooms
4
Full bathrooms
4
Half bathrooms
3
Standard Foundations
Crawl
Exterior Walls
2x4
Optional Type(s)
2x6
Width
40' 0"
Depth
50' 2"
Max Ridge Height
29' 3"
First Floor
9' 1"
Second Floor
9' 1"
Framing Type
Stick
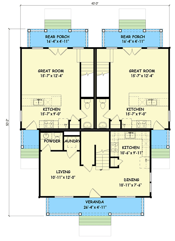
Total Heated Area
2,644 sq. ft.
1st Floor
1,416 sq. ft.
2nd Floor
1,228 sq. ft.
Porch, Front
184 sq. ft.
Porch, Rear
164 sq. ft.
Balcony / Veranda
164 sq. ft.
Bedrooms
4
Full bathrooms
4
Half bathrooms
3
Standard Foundations
Crawl
Exterior Walls
2x4
Optional Type(s)
2x6
Width
40' 0"
Depth
50' 2"
Max Ridge Height
29' 3"
First Floor
9' 1"
Second Floor
9' 1"
Framing Type
Stick