LogoLogo TaglineLogo Tagline
Loading...
Plan 95123RW

40-Foot Wide Modern Contemporary House Plan with 2-Story Living Room

Heated S.F.
2,413
Beds
4 - 5
Baths
3.5 - 4.5
Stories
2
Cars
2- 3

Floor Plan

Plan 95123RW

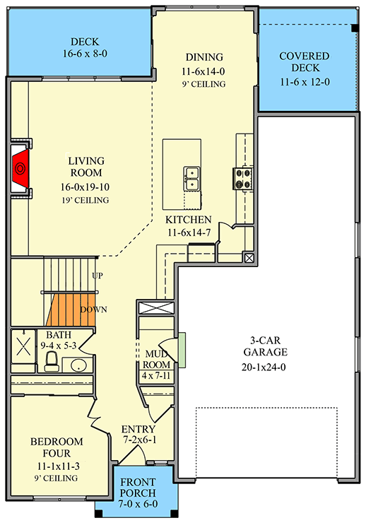
Main Level
Main Level
2nd Floor
2nd Floor
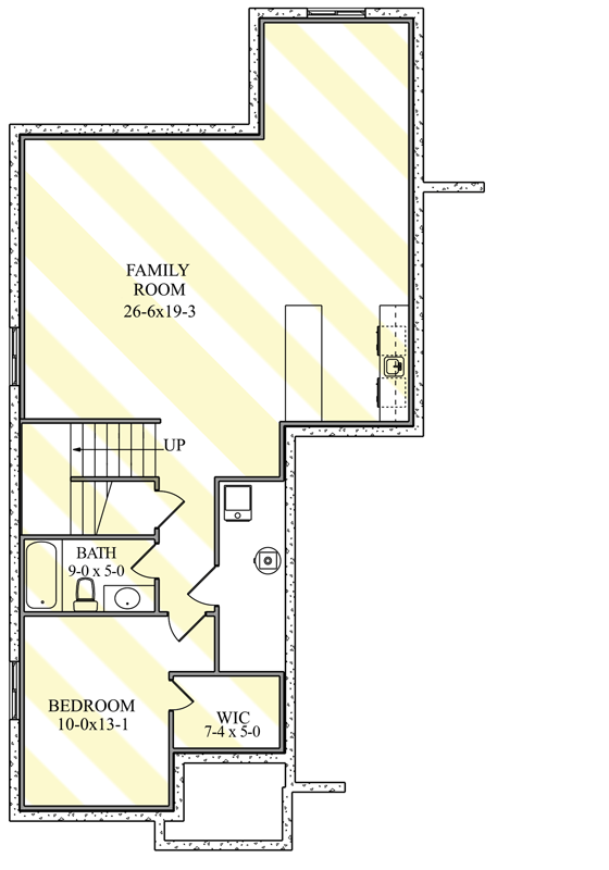
Optionally Finished Lower Level
Optionally Finished Lower Level

Plan 95123RW

M-F 9am-5pm EST |

1-203-761-8500

Main Level

Plan 95123RW: 40-Foot Wide Modern Contemporary House Plan with 2-Story Living Room - Floor Plan - Main Level - Contemporary, Mid Century Modern, Modern, Northwest

2nd Floor

Plan 95123RW: 40-Foot Wide Modern Contemporary House Plan with 2-Story Living Room - Floor Plan - 2nd Floor - Contemporary, Mid Century Modern, Modern, Northwest

Optionally Finished Lower Level

Plan 95123RW: 40-Foot Wide Modern Contemporary House Plan with 2-Story Living Room - Floor Plan - Optionally Finished Lower Level - Contemporary, Mid Century Modern, Modern, Northwest

Plan Details

  • This 40' wide, modern house plan can be nestled into narrow plot lines, and features a 3-car tandem garage, open-concept main floor, and optional lower level with a family room and additional bedroom.
  • To the left of the entryway, you will find a bedroom, perfect for guests, a study, or home office. The mudroom and garage access is nearby, along with a full bathroom.
  • Towards the rear, natural lighting fills the combined living room, kitchen, and dining area, where tall ceilings above the living room makes the space feel larger.
  • Covered decks frame the protruding dining room; ideal for grilling, dining, or lounging outdoors.
  • Upstairs, discover three bedrooms and a laundry room, including the master that features a sitting area, private deck, and 4-fixture bathroom with a walk-in closet.

What's Included

  • Cover Page
  • All Four Exterior Elevations (front, left, rear and right)
  • Dimensioned Floor Plans
  • Foundation Plan (with no specifications of structural elements)
  • Roof Plan (with no specifications of structural elements)
  • Typical Wall Sections
  • Electrical plan
View Sample Plan

What's Not Included

  • Architectural or Engineering Stamp - handled locally if required
  • Site Plan - handled locally when required
  • Mechanical Drawings (location of heating and air equipment and duct work) - your subcontractors handle this
  • Plumbing Drawings (drawings showing the actual plumbing pipe sizes and locations) - your subcontractors handle this
  • REScheck or other energy related calculations are NOT included.
  • Wind load or seismic calculations are NOT included. 
  • Framing plans or beam sizes are NOT included.
  • Other specific drawings that your local permit office may requires
Starting at
Loading...
What's included?
Plan Set
Select...

Foundation
Select...

Options
Optional Add-Ons
+$0

Loading...
Price Match Guarantee
Cost to Build Report
Still deciding? Calculate the cost to build this house in your area.
Loading...
Customize This Plan
Need to make changes? We will get you a free price quote within 1 to 3 business days.
Cost to Furnish Report
Instant room-by-room estimates for your entire furniture & home decor plan, matched to your budget.
Loading...

Square Footage Breakdown

Total Heated Area

2,413 sq. ft.

1st Floor

1,195 sq. ft.

2nd Floor

1,218 sq. ft.

Basement Unfinished

143 sq. ft.

Optional Lower Level

1,052 sq. ft.

Porch, Combined

439 sq. ft.

Beds/Baths

Bedrooms

4 or 5

Full bathrooms

3 or 4

Half bathrooms

1

Foundation Type

Standard Foundations

Basement

Exterior Walls

Exterior Walls

2x6

Dimensions

Width

40' 0"

Depth

58' 0"

Max Ridge Height

27' 0"

Garage

Type

Attached

Area

705 sq. ft.

Count

2 or 3 Cars

Entry Location

Front

Ceiling Heights

Lower Level

9'

First Floor

9'

Second Floor

9'

Roof Details

Primary Pitch

4 on 12

Framing Type

Truss

Architectural Style

Contemporary

Plan Collections

Square Footage Breakdown

Total Heated Area

2,413 sq. ft.

1st Floor

1,195 sq. ft.

2nd Floor

1,218 sq. ft.

Basement Unfinished

143 sq. ft.

Optional Lower Level

1,052 sq. ft.

Porch, Combined

439 sq. ft.

Beds/Baths

Bedrooms

4 or 5

Full bathrooms

3 or 4

Half bathrooms

1

Foundation Type

Standard Foundations

Basement

Exterior Walls

Exterior Walls

2x6

Dimensions

Width

40' 0"

Depth

58' 0"

Max Ridge Height

27' 0"

Garage

Type

Attached

Area

705 sq. ft.

Count

2 or 3 Cars

Entry Location

Front

Ceiling Heights

Lower Level

9'

First Floor

9'

Second Floor

9'

Roof Details

Primary Pitch

4 on 12

Framing Type

Truss

Plan Collections

* Please note that all sale prices and promotions featured on our website are subject to change without prior notice. While we strive to provide accurate and up-to-date information, occasional discrepancies may occur due to factors beyond our control. We encourage you to verify all details, including pricing and availability, before making any purchase. Exclusions or restrictions may apply to specific promotions. We reserve the right to modify or cancel any sale at our discretion. Thank you for your understanding and happy shopping!Let's go back to the top.