

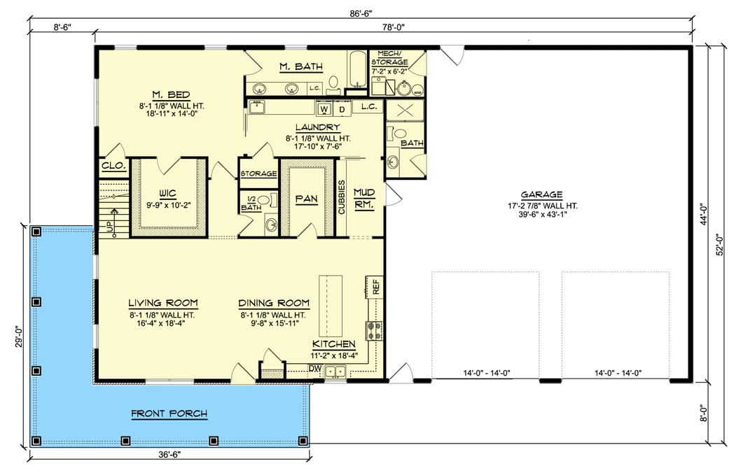
Total Heated Area
3,484 sq. ft.
1st Floor
1,767 sq. ft.
2nd Floor
1,717 sq. ft.
Porch, Front
452 sq. ft.
Bedrooms
5
Full bathrooms
3
Half bathrooms
1
Standard Foundations
Slab
Exterior Walls
2x6
Width
86' 6"
Depth
52' 0"
Max Ridge Height
25' 0"
Type
Attached, RV Garage
Area
1665 sq. ft.
Count
2 Cars
Entry Location
Front
First Floor
8'
Second Floor
8'
Primary Pitch
4 on 12
Framing Type
Truss
Total Heated Area
3,484 sq. ft.
1st Floor
1,767 sq. ft.
2nd Floor
1,717 sq. ft.
Porch, Front
452 sq. ft.
Bedrooms
5
Full bathrooms
3
Half bathrooms
1
Standard Foundations
Slab
Exterior Walls
2x6
Width
86' 6"
Depth
52' 0"
Max Ridge Height
25' 0"
Type
Attached, RV Garage
Area
1665 sq. ft.
Count
2 Cars
Entry Location
Front
First Floor
8'
Second Floor
8'
Primary Pitch
4 on 12
Framing Type
Truss