


Total Heated Area
2,366 sq. ft.
1st Floor
1,757 sq. ft.
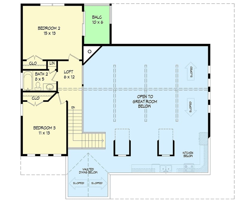
2nd Floor
609 sq. ft.
Basement Unfinished
1,691 sq. ft.
Porch, Combined
852 sq. ft.
Storage
26 sq. ft.
Bedrooms
3 or 4
Full bathrooms
2 or 3
Half bathrooms
1
Standard Foundations
Basement
Exterior Walls
2x6
Width
53' 2"
Depth
48' 6"
Max Ridge Height
26' 8"
First Floor
9'
Second Floor
9'
Primary Pitch
10 on 12
Secondary Pitch
8 on 12
Framing Type
Stick
Total Heated Area
2,366 sq. ft.
1st Floor
1,757 sq. ft.
2nd Floor
609 sq. ft.
Basement Unfinished
1,691 sq. ft.
Porch, Combined
852 sq. ft.
Storage
26 sq. ft.
Bedrooms
3 or 4
Full bathrooms
2 or 3
Half bathrooms
1
Standard Foundations
Basement
Exterior Walls
2x6
Width
53' 2"
Depth
48' 6"
Max Ridge Height
26' 8"
First Floor
9'
Second Floor
9'
Primary Pitch
10 on 12
Secondary Pitch
8 on 12
Framing Type
Stick