LogoLogo TaglineLogo Tagline
Loading...
Plan 68808VR

Country Home Plan with 3-sided Wraparound Porch and a Drive-under Garage

Heated S.F.
2,245
Beds
3
Baths
2
Stories
2
Cars
3

Floor Plan

Plan 68808VR

Main Level
Main Level
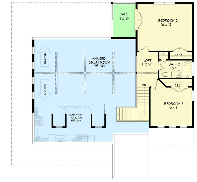
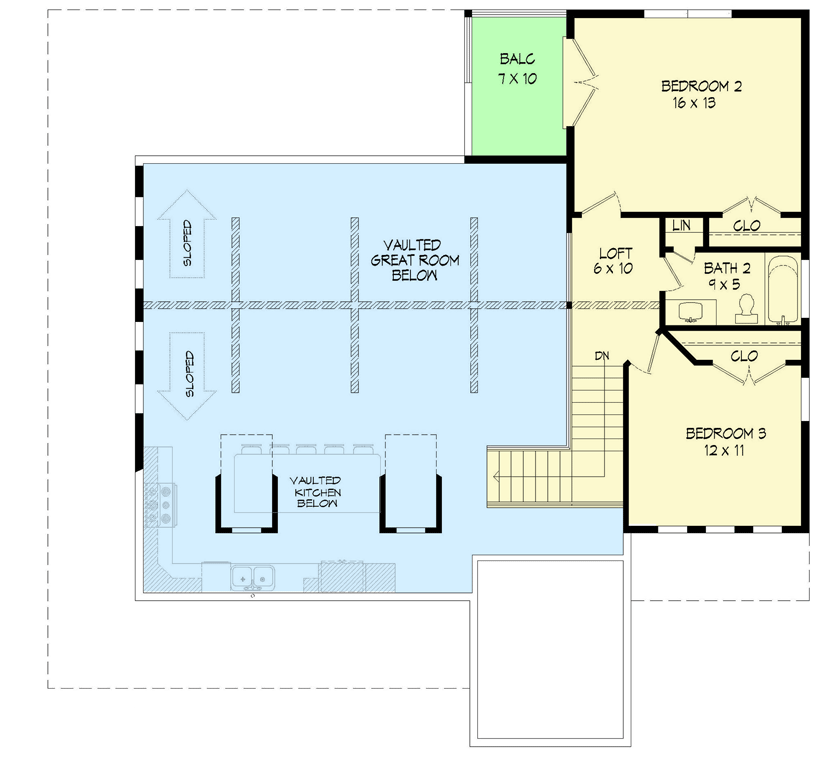
2nd Floor
2nd Floor
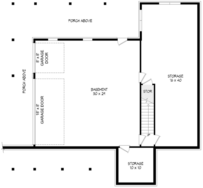
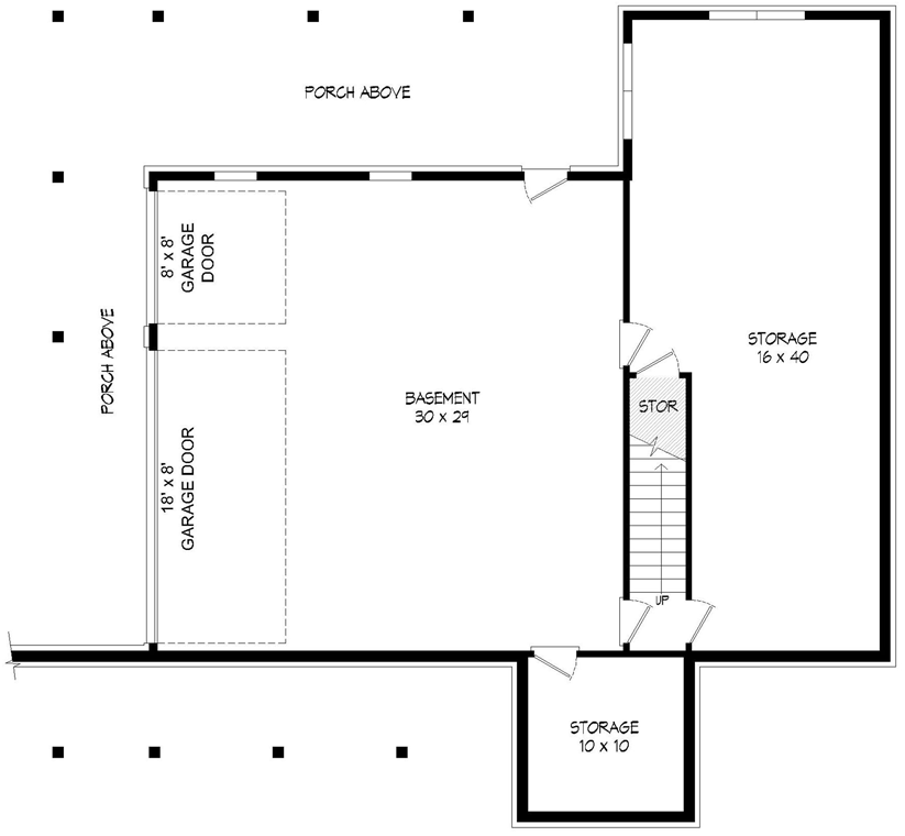
Lower Level
Lower Level

Plan 68808VR

M-F 9am-5pm EST |

1-203-761-8500

Main Level

Plan 68808VR: Country Home Plan with 3-sided Wraparound Porch and a Drive-under Garage - Floor Plan - Main Level - Cottage, Country, Farmhouse

2nd Floor

Plan 68808VR: Country Home Plan with 3-sided Wraparound Porch and a Drive-under Garage - Floor Plan - 2nd Floor - Cottage, Country, Farmhouse

Lower Level

Plan 68808VR: Country Home Plan with 3-sided Wraparound Porch and a Drive-under Garage - Floor Plan - Lower Level - Cottage, Country, Farmhouse

Plan Details

  • This 3-bed house plan greets you with a country facade and a porch that wraps around the entire left side of the home. Two dormers sit above the porch and bring light into the vaulted interior. The exterior has blend of board and batten siding and stone and has a rugged standing seam metal roof.
  • The front door takes you into the open floor plan where the kitchen has unimpeded views across the vaulted great room with corner fireplace and to the covered back porch beyond.
  • A bonus room in front - included in the total living area - can be used as a den, a home office or a formal dining room.
  • The main floor master has back porch access through a pair of French doors. Upstairs, Bed 2 has a private balcony with views to the back. A small loft overlooking the great room and Bedroom 3 complete the upstairs.
  • Related Plans: Get an alternate version with house plans 68505VR (2,095 sq. ft.), 68625VR (2,200 sq. ft.), 68820VR (2,366 sq. ft.) and 68878VR (3,483 sq. ft.). Build on a walkout and get an elevator with house plan 680101VR.

What's Included

  • Floor Plans: House plan drawings indicating dimensions for construction
  • Roof Plan: Drawings indicating roof slopes and unique conditions
  • Exterior Elevations: Drawings showing appearance and the types of materials used for the exterior finish and trim
  • Building Sections: Drawings cut through important locations in the structure
  • Construction Details: Drawings showing specific construction of building elements at a large scale
  • Kitchen and bath elevations (excluded on garage plans)
  • Electrical Plans: Basic electrical layout (suggested locations of fixtures, switches and outlets)
  • Foundation Plan: Dimensioned drawings describing specific foundation conditions for the structure
  • Building license: A single-use license for construction at one location only

View Sample Plan

What's Not Included

  • Architectural or Engineering Stamp - handled locally if required
  • Site Plan - handled locally when required
  • Mechanical Drawings (location of heating and air equipment and duct work) - your subcontractors handle this
  • Plumbing Drawings (drawings showing the actual plumbing pipe sizes and locations) - your subcontractors handle this
  • Energy calculations - handled locally when required
Starting at
Loading...
What's included?
Plan Set
Select...

Foundation
Select...

Options
Optional Add-Ons
+$0

Loading...
Price Match Guarantee
Cost to Build Report
Still deciding? Calculate the cost to build this house in your area.
Loading...
Customize This Plan
Need to make changes? We will get you a free price quote within 1 to 3 business days.
Cost to Furnish Report
Instant room-by-room estimates for your entire furniture & home decor plan, matched to your budget.
Loading...

Square Footage Breakdown

Total Heated Area

2,245 sq. ft.

1st Floor

1,685 sq. ft.

2nd Floor

560 sq. ft.

Basement Unfinished

1,685 sq. ft.

Storage

640 sq. ft.

Beds/Baths

Bedrooms

3

Full bathrooms

2

Foundation Type

Standard Foundations

Basement

Exterior Walls

Exterior Walls

2x6

Dimensions

Width

52' 2"

Depth

50' 6"

Max Ridge Height

25' 10"

Garage

Type

Attached, Drive Under

Area

870 sq. ft.

Count

3 Cars

Entry Location

Side

Ceiling Heights

Lower Level

9'

First Floor

9'

Second Floor

8'

Roof Details

Primary Pitch

10 on 12

Secondary Pitch

5 on 12

Framing Type

Stick

Architectural Style

Cottage

Square Footage Breakdown

Total Heated Area

2,245 sq. ft.

1st Floor

1,685 sq. ft.

2nd Floor

560 sq. ft.

Basement Unfinished

1,685 sq. ft.

Storage

640 sq. ft.

Beds/Baths

Bedrooms

3

Full bathrooms

2

Foundation Type

Standard Foundations

Basement

Exterior Walls

Exterior Walls

2x6

Dimensions

Width

52' 2"

Depth

50' 6"

Max Ridge Height

25' 10"

Garage

Type

Attached, Drive Under

Area

870 sq. ft.

Count

3 Cars

Entry Location

Side

Ceiling Heights

Lower Level

9'

First Floor

9'

Second Floor

8'

Roof Details

Primary Pitch

10 on 12

Secondary Pitch

5 on 12

Framing Type

Stick

Architectural Style

* Please note that all sale prices and promotions featured on our website are subject to change without prior notice. While we strive to provide accurate and up-to-date information, occasional discrepancies may occur due to factors beyond our control. We encourage you to verify all details, including pricing and availability, before making any purchase. Exclusions or restrictions may apply to specific promotions. We reserve the right to modify or cancel any sale at our discretion. Thank you for your understanding and happy shopping!Let's go back to the top.