
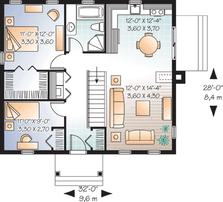
Total Heated Area
896 sq. ft.
1st Floor
896 sq. ft.
Bedrooms
2
Full bathrooms
1
Standard Foundations
Basement
Exterior Walls
2x6
Width
32' 0"
Depth
28' 0"
Max Ridge Height
17' 6"
First Floor
8'
Total Heated Area
896 sq. ft.
1st Floor
896 sq. ft.
Bedrooms
2
Full bathrooms
1
Standard Foundations
Basement
Exterior Walls
2x6
Width
32' 0"
Depth
28' 0"
Max Ridge Height
17' 6"
First Floor
8'