

We also include a list of building specifications, and notes for each page, with any important info the builder may need.
Total Heated Area
2,783 sq. ft.
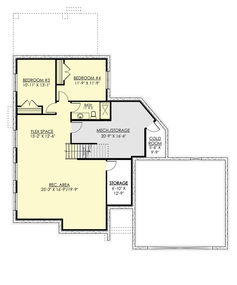
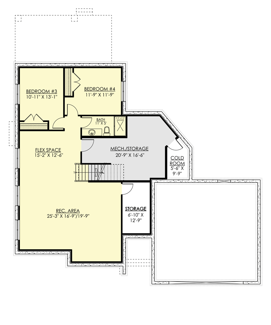
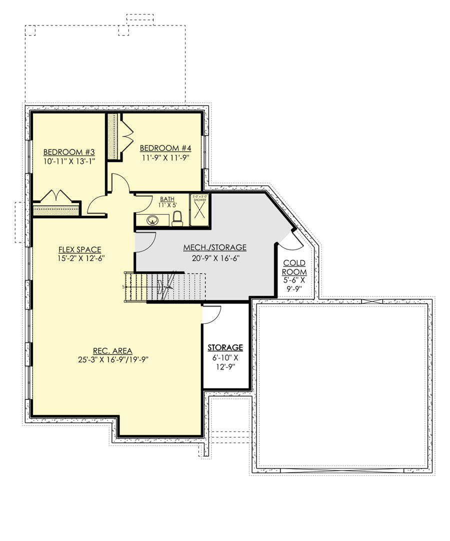
Lower Level
1,077 sq. ft.
1st Floor
1,706 sq. ft.
Bedrooms
4
Full bathrooms
2 or 3
Half bathrooms
1
Standard Foundations
Basement
Exterior Walls
2x6
Width
61' 0"
Depth
67' 0"
Max Ridge Height
16' 8"
Type
Attached
Count
2 Cars
Entry Location
Front
Lower Level
9' 4"
First Floor
9' 1"
Primary Pitch
3 on 12
Framing Type
Truss
Total Heated Area
2,783 sq. ft.
Lower Level
1,077 sq. ft.
1st Floor
1,706 sq. ft.
Bedrooms
4
Full bathrooms
2 or 3
Half bathrooms
1
Standard Foundations
Basement
Exterior Walls
2x6
Width
61' 0"
Depth
67' 0"
Max Ridge Height
16' 8"
Type
Attached
Count
2 Cars
Entry Location
Front
Lower Level
9' 4"
First Floor
9' 1"
Primary Pitch
3 on 12
Framing Type
Truss