


Total Heated Area
6,555 sq. ft.
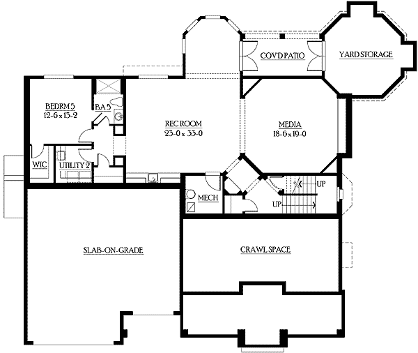
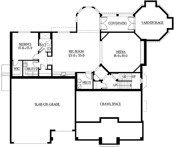
Lower Level
1,665 sq. ft.
1st Floor
2,260 sq. ft.
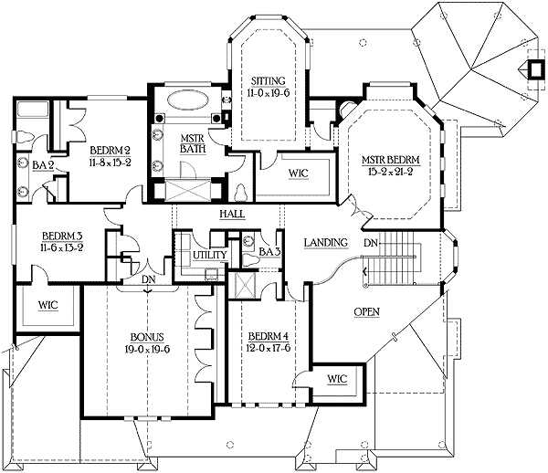
2nd Floor
2,630 sq. ft.
Bedrooms
5 or 6
Full bathrooms
5
Standard Foundations
Walkout
Exterior Walls
2x6
Width
79' 0"
Depth
70' 0"
Max Ridge Height
30' 2"
Type
Attached
Area
945 sq. ft.
Count
3 Cars
Entry Location
Front
Lower Level
9'
First Floor
9'
Second Floor
9'
Primary Pitch
8 on 12
Secondary Pitch
12 on 12
Framing Type
Truss
Total Heated Area
6,555 sq. ft.
Lower Level
1,665 sq. ft.
1st Floor
2,260 sq. ft.
2nd Floor
2,630 sq. ft.
Bedrooms
5 or 6
Full bathrooms
5
Standard Foundations
Walkout
Exterior Walls
2x6
Width
79' 0"
Depth
70' 0"
Max Ridge Height
30' 2"
Type
Attached
Area
945 sq. ft.
Count
3 Cars
Entry Location
Front
Lower Level
9'
First Floor
9'
Second Floor
9'
Primary Pitch
8 on 12
Secondary Pitch
12 on 12
Framing Type
Truss