

Total Heated Area
4,601 sq. ft.
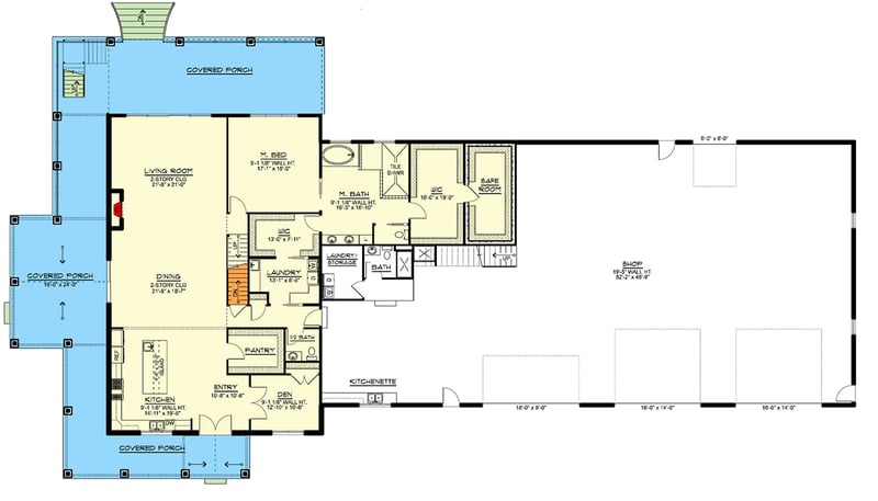
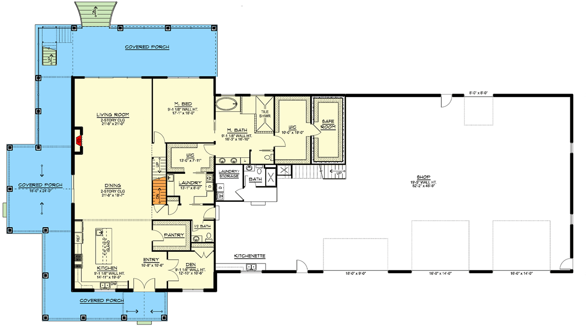
1st Floor
3,122 sq. ft.
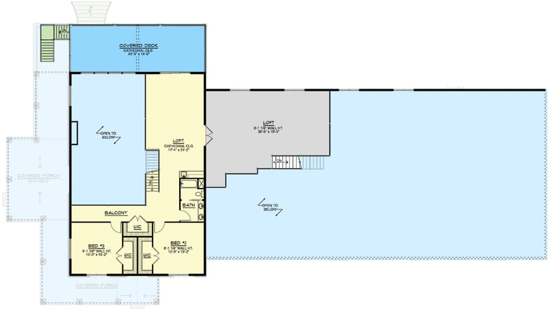
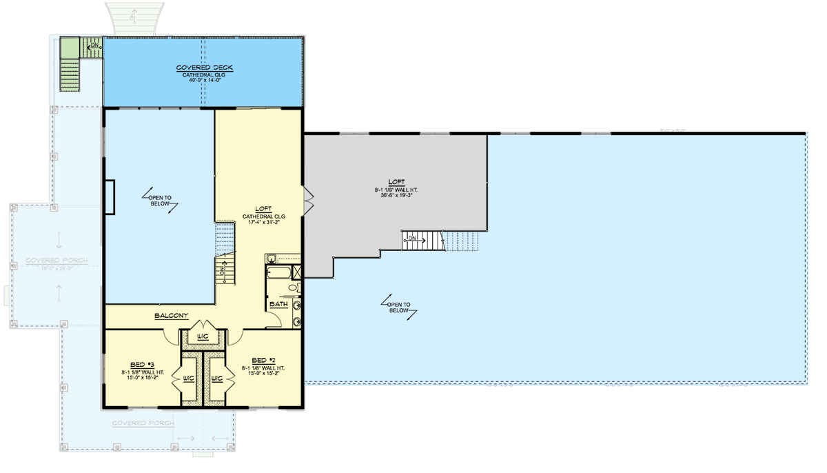
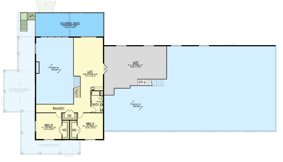
2nd Floor
1,479 sq. ft.
Porch, Combined
1,588 sq. ft.
Deck
552 sq. ft.
Unheated Loft
859 sq. ft.
Bedrooms
3
Full bathrooms
3
Half bathrooms
1
Standard Foundations
Slab
Exterior Walls
2x6
Width
158' 0"
Depth
82' 0"
Max Ridge Height
30' 5"
Type
Attached, RV Garage
Area
4296 sq. ft.
Count
4 Cars
Entry Location
Front
First Floor
9'
Second Floor
8'
Primary Pitch
5 on 12
Secondary Pitch
7 on 12
Framing Type
Truss
Total Heated Area
4,601 sq. ft.
1st Floor
3,122 sq. ft.
2nd Floor
1,479 sq. ft.
Porch, Combined
1,588 sq. ft.
Deck
552 sq. ft.
Unheated Loft
859 sq. ft.
Bedrooms
3
Full bathrooms
3
Half bathrooms
1
Standard Foundations
Slab
Exterior Walls
2x6
Width
158' 0"
Depth
82' 0"
Max Ridge Height
30' 5"
Type
Attached, RV Garage
Area
4296 sq. ft.
Count
4 Cars
Entry Location
Front
First Floor
9'
Second Floor
8'
Primary Pitch
5 on 12
Secondary Pitch
7 on 12
Framing Type
Truss