

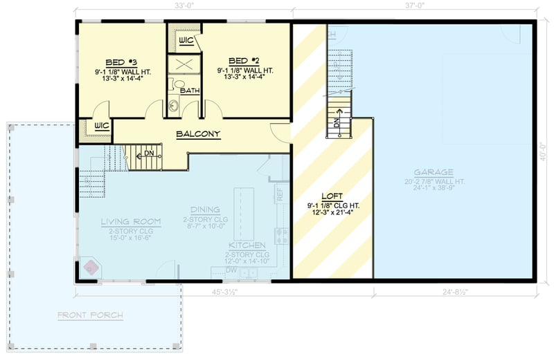
Total Heated Area
1,986 sq. ft.
1st Floor
1,320 sq. ft.
2nd Floor
666 sq. ft.
Loft
367 sq. ft.
Bedrooms
3
Full bathrooms
2
Half bathrooms
2
Standard Foundations
Slab
Exterior Walls
2x6
Width
80' 0"
Depth
50' 0"
Max Ridge Height
27' 5"
Type
Attached, RV Garage
Area
1182 sq. ft.
Count
2 Cars
Entry Location
Front, Side
First Floor
10'
Second Floor
9'
Framing Type
Truss
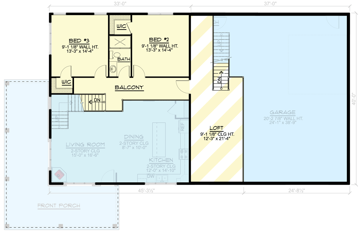
Total Heated Area
1,986 sq. ft.
1st Floor
1,320 sq. ft.
2nd Floor
666 sq. ft.
Loft
367 sq. ft.
Bedrooms
3
Full bathrooms
2
Half bathrooms
2
Standard Foundations
Slab
Exterior Walls
2x6
Width
80' 0"
Depth
50' 0"
Max Ridge Height
27' 5"
Type
Attached, RV Garage
Area
1182 sq. ft.
Count
2 Cars
Entry Location
Front, Side
First Floor
10'
Second Floor
9'
Framing Type
Truss