


Total Heated Area
3,281 sq. ft.
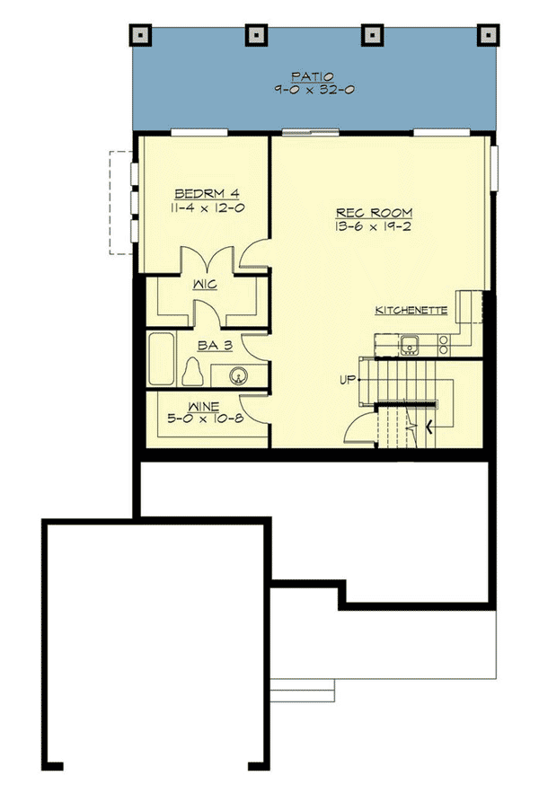
Lower Level
923 sq. ft.
1st Floor
1,241 sq. ft.
2nd Floor
1,117 sq. ft.
Porch, Rear
288 sq. ft.
Deck
166 sq. ft.
Bedrooms
4
Full bathrooms
3
Half bathrooms
1
Standard Foundations
Basement
Exterior Walls
2x6
Width
69' 0"
Depth
40' 0"
Max Ridge Height
27' 0"
Type
Attached
Area
446 sq. ft.
Count
2 Cars
Entry Location
Front
Lower Level
8'
First Floor
9'
Second Floor
8'
Primary Pitch
9 on 12
Framing Type
Truss
Total Heated Area
3,281 sq. ft.
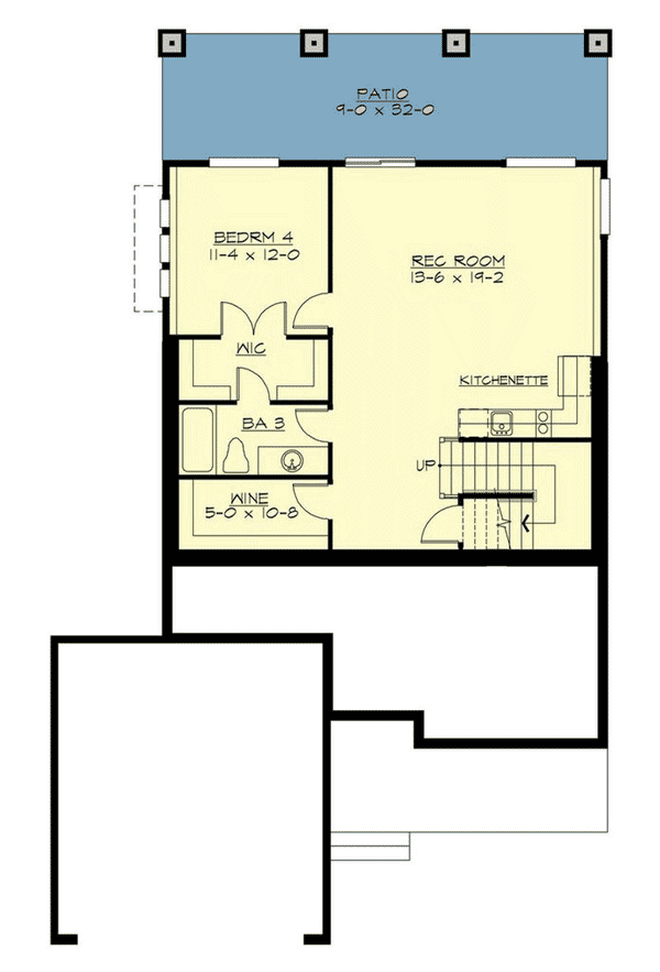
Lower Level
923 sq. ft.
1st Floor
1,241 sq. ft.
2nd Floor
1,117 sq. ft.
Porch, Rear
288 sq. ft.
Deck
166 sq. ft.
Bedrooms
4
Full bathrooms
3
Half bathrooms
1
Standard Foundations
Basement
Exterior Walls
2x6
Width
69' 0"
Depth
40' 0"
Max Ridge Height
27' 0"
Type
Attached
Area
446 sq. ft.
Count
2 Cars
Entry Location
Front
Lower Level
8'
First Floor
9'
Second Floor
8'
Primary Pitch
9 on 12
Framing Type
Truss