LogoLogo TaglineLogo Tagline
Loading...
Plan 90176PD

Central Sweeping Stair

Heated S.F.
3,287
Beds
4
Baths
2.5
Stories
2
Cars
1

Floor Plan

Plan 90176PD

Main Level
Main Level
2nd Floor
2nd Floor

Plan 90176PD

M-F 9am-5pm EST |

1-203-761-8500

Main Level

Plan 90176PD: Central Sweeping Stair - Floor Plan - Main Level - European, Traditional

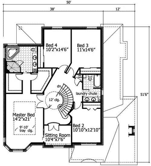
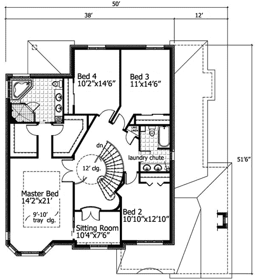
2nd Floor

Plan 90176PD: Central Sweeping Stair - Floor Plan - 2nd Floor - European, Traditional

Plan Details

  • This house plan features a central stair with a graceful turn to it creating a great visual as you enter the home.
  • A large walk-in pantry and a roomy kitchen with pocket door and bay window are all made to entertain.
  • The family room is spacious and open to the kitchen. An optional gas fireplace is included and french doors lead to the back.
  • Upstairs, a laundry chute in the hall bath is a great feature.
  • The master bedroom has a tray ceiling and a sitting room accessible by pocket doors.

What's Included

Please note this plan is designed to the National Building Code of Canada.  
  • Elevations
  • Lower level plan -- including floor above structure, concrete level and thickness, electrical layout
  • Main floor plan w/ structure for the roof above, electrical layout
  • Building section
  • Construction details
  • Suggested lighting plan

What's Not Included

  • Architectural or Engineering Stamp - handled locally if required
  • Site Plan - handled locally when required
  • Mechanical Drawings (location of heating and air equipment and duct work) - your subcontractors handle this
  • Plumbing Drawings (drawings showing the actual plumbing pipe sizes and locations) - your subcontractors handle this
  • Framing - layouts with beam sizes and locations
  • Energy calculations - handled locally when required

Starting at

Loading...
Price Match Guarantee
What's included?

FORMAT & LICENSE

Choose an option

$0

Not sure what to choose?

Pointer link icon

FOUNDATION

Choose an option

+$0

OPTIONS

Choose Additional Options

+$0

Loading...

Modify this Plan

Receive a free modification quote within 3 business days.

Loading...

Start with a Cost Report

Calculate the cost to build & furnish your home.

Loading...
Loading...

Square Footage Breakdown

Total Heated Area

3,287 sq. ft.

1st Floor

1,641 sq. ft.

2nd Floor

1,646 sq. ft.

Basement Unfinished

1,641 sq. ft.

Beds/Baths

Bedrooms

4

Full bathrooms

2

Half bathrooms

1

Foundation Type

Standard Foundations

Basement

Exterior Walls

Exterior Walls

2x6

Dimensions

Width

50' 0"

Depth

51' 6"

Max Ridge Height

37' 8"

Garage

Type

Attached

Area

526 sq. ft.

Count

1 Cars

Entry Location

Side

Ceiling Heights

First Floor

9'

Second Floor

9'

Roof Details

Framing Type

Truss

Architectural Style

European

Square Footage Breakdown

Total Heated Area

3,287 sq. ft.

1st Floor

1,641 sq. ft.

2nd Floor

1,646 sq. ft.

Basement Unfinished

1,641 sq. ft.

Beds/Baths

Bedrooms

4

Full bathrooms

2

Half bathrooms

1

Foundation Type

Standard Foundations

Basement

Exterior Walls

Exterior Walls

2x6

Dimensions

Width

50' 0"

Depth

51' 6"

Max Ridge Height

37' 8"

Garage

Type

Attached

Area

526 sq. ft.

Count

1 Cars

Entry Location

Side

Ceiling Heights

First Floor

9'

Second Floor

9'

Roof Details

Framing Type

Truss

Architectural Style

* Please note that all sale prices and promotions featured on our website are subject to change without prior notice. While we strive to provide accurate and up-to-date information, occasional discrepancies may occur due to factors beyond our control. We encourage you to verify all details, including pricing and availability, before making any purchase. Exclusions or restrictions may apply to specific promotions. We reserve the right to modify or cancel any sale at our discretion. Thank you for your understanding and happy shopping!Let's go back to the top.