

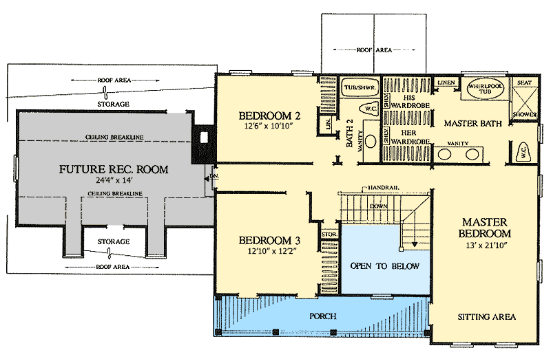
Total Heated Area
2,378 sq. ft.
1st Floor
1,291 sq. ft.
2nd Floor
1,087 sq. ft.
Bonus
366 sq. ft.
Bedrooms
3
Full bathrooms
2
Half bathrooms
1
Standard Foundations
Crawl
Exterior Walls
2x4
Width
65' 4"
Depth
40' 0"
Max Ridge Height
37' 0"
Type
Attached
Area
513 sq. ft.
Count
2 Cars
Entry Location
Side
First Floor
9'
Second Floor
8'
Framing Type
Stick
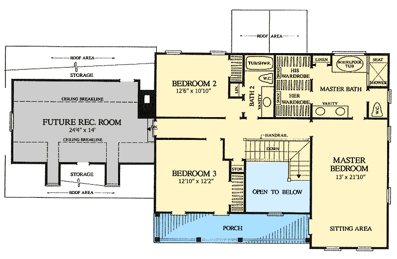
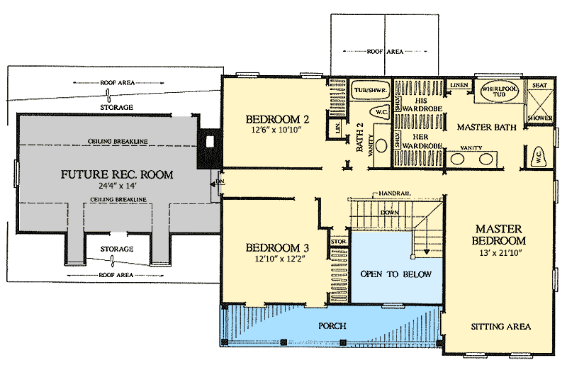
Total Heated Area
2,378 sq. ft.
1st Floor
1,291 sq. ft.
2nd Floor
1,087 sq. ft.
Bonus
366 sq. ft.
Bedrooms
3
Full bathrooms
2
Half bathrooms
1
Standard Foundations
Crawl
Exterior Walls
2x4
Width
65' 4"
Depth
40' 0"
Max Ridge Height
37' 0"
Type
Attached
Area
513 sq. ft.
Count
2 Cars
Entry Location
Side
First Floor
9'
Second Floor
8'
Framing Type
Stick