

Total Heated Area
2,080 sq. ft.
1st Floor
2,080 sq. ft.
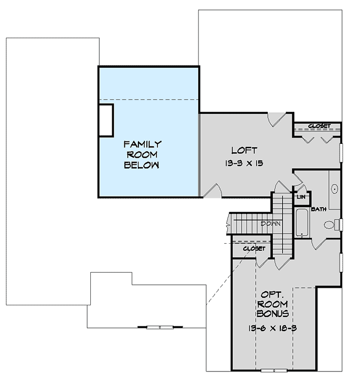
Bonus
689 sq. ft.
Bedrooms
3 or 4
Full bathrooms
2 or 3
Standard Foundations
Slab
Exterior Walls
2x4
Width
54' 4"
Depth
58' 6"
Max Ridge Height
23' 11"
Type
Attached
Count
2 Cars
Entry Location
Front
First Floor
9'
Second Floor
9'
Primary Pitch
8 on 12
Secondary Pitch
12 on 12
Framing Type
Stick
Total Heated Area
2,080 sq. ft.
1st Floor
2,080 sq. ft.
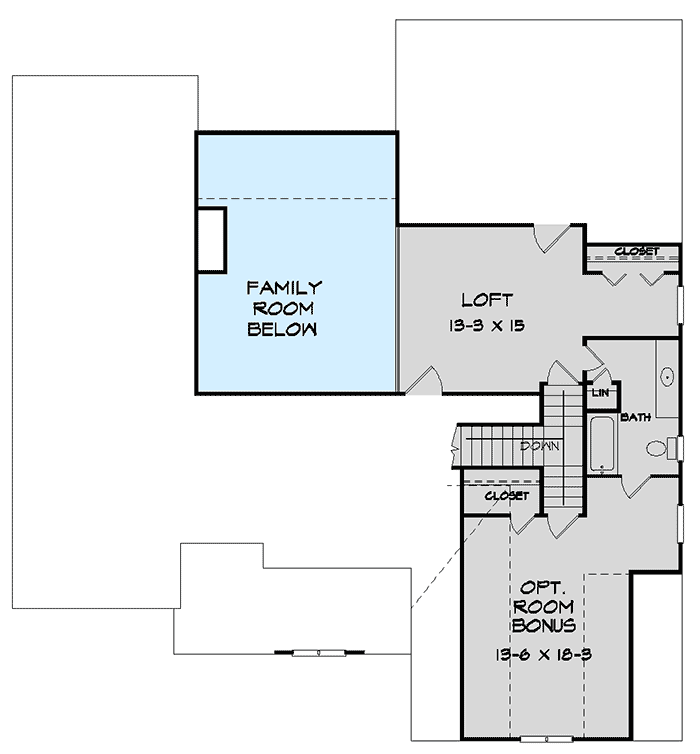
Bonus
689 sq. ft.
Bedrooms
3 or 4
Full bathrooms
2 or 3
Standard Foundations
Slab
Exterior Walls
2x4
Width
54' 4"
Depth
58' 6"
Max Ridge Height
23' 11"
Type
Attached
Count
2 Cars
Entry Location
Front
First Floor
9'
Second Floor
9'
Primary Pitch
8 on 12
Secondary Pitch
12 on 12
Framing Type
Stick