Exclusive

Total Heated Area
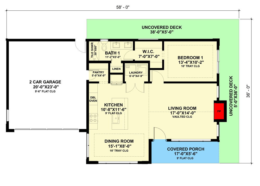
928 sq. ft.
1st Floor
928 sq. ft.
Porch, Front
93 sq. ft.
Bedrooms
1
Full bathrooms
1
Standard Foundations
Monolithic Slab, Slab
Exterior Walls
2x6
Width
58' 0"
Depth
36' 0"
Max Ridge Height
22' 3"
Type
Attached
Area
460 sq. ft.
Count
2 Cars
Entry Location
Front
First Floor
9'
Room
Ceiling Type
Height
Living Room
Vaulted
9' 0''
Dining Room
Tray
10' 0''
Bedroom 1
Tray
10' 0''
Primary Pitch
7 on 12
Framing Type
Truss
Total Heated Area
928 sq. ft.
1st Floor
928 sq. ft.
Porch, Front
93 sq. ft.
Bedrooms
1
Full bathrooms
1
Standard Foundations
Monolithic Slab, Slab
Exterior Walls
2x6
Width
58' 0"
Depth
36' 0"
Max Ridge Height
22' 3"
Type
Attached
Area
460 sq. ft.
Count
2 Cars
Entry Location
Front
First Floor
9'
Room
Ceiling Type
Height
Living Room
Vaulted
9' 0''
Dining Room
Tray
10' 0''
Bedroom 1
Tray
10' 0''
Primary Pitch
7 on 12
Framing Type
Truss