

Starting at
Ready to Get Started?
Select your plan set options before checkout.
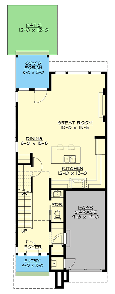
Total Heated Area
1,736 sq. ft.
1st Floor
776 sq. ft.
2nd Floor
960 sq. ft.
Bedrooms
3
Full bathrooms
2
Half bathrooms
1
Standard Foundations
Crawl
Exterior Walls
2x6
Width
22' 0"
Depth
56' 0"
Max Ridge Height
25' 0"
Type
Attached
Area
216 sq. ft.
Count
1 Cars
Entry Location
Front
First Floor
9'
Second Floor
9'
Primary Pitch
4 on 12
Framing Type
Truss
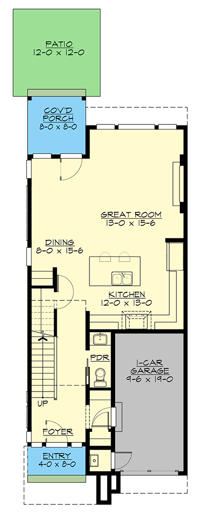
Total Heated Area
1,736 sq. ft.
1st Floor
776 sq. ft.
2nd Floor
960 sq. ft.
Bedrooms
3
Full bathrooms
2
Half bathrooms
1
Standard Foundations
Crawl
Exterior Walls
2x6
Width
22' 0"
Depth
56' 0"
Max Ridge Height
25' 0"
Type
Attached
Area
216 sq. ft.
Count
1 Cars
Entry Location
Front
First Floor
9'
Second Floor
9'
Primary Pitch
4 on 12
Framing Type
Truss