

Total Heated Area
795 sq. ft.
1st Floor
795 sq. ft.
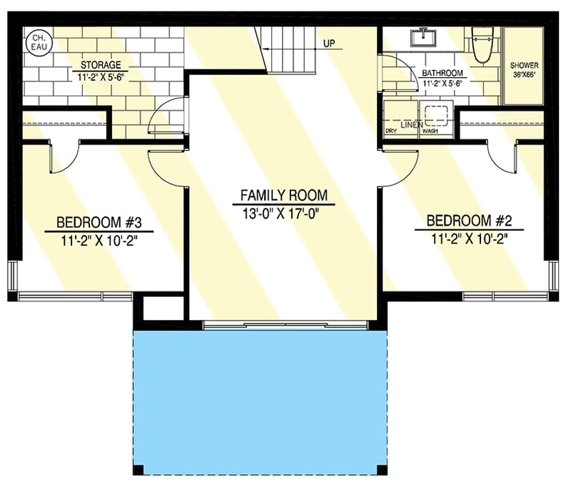
Optional Lower Level
795 sq. ft.
Porch, Front
36 sq. ft.
Porch, Rear
175 sq. ft.
Bedrooms
1, 2, or 3
Full bathrooms
1 or 2
Standard Foundations
Walkout
Exterior Walls
2x6
Width
38' 0"
Depth
22' 0"
Max Ridge Height
19' 6"
Primary Pitch
8 on 12
Framing Type
Truss
Total Heated Area
795 sq. ft.
1st Floor
795 sq. ft.
Optional Lower Level
795 sq. ft.
Porch, Front
36 sq. ft.
Porch, Rear
175 sq. ft.
Bedrooms
1, 2, or 3
Full bathrooms
1 or 2
Standard Foundations
Walkout
Exterior Walls
2x6
Width
38' 0"
Depth
22' 0"
Max Ridge Height
19' 6"
Primary Pitch
8 on 12
Framing Type
Truss