
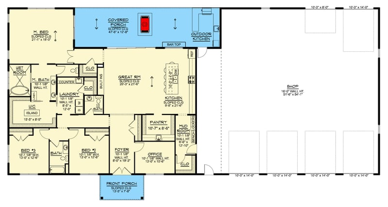
Total Heated Area
2,890 sq. ft.
1st Floor
2,890 sq. ft.
Bedrooms
3
Full bathrooms
2
Half bathrooms
1
Standard Foundations
Slab
Exterior Walls
2x6
Width
122' 0"
Depth
63' 0"
Max Ridge Height
21' 8"
Type
Standard, RV Garage
Area
3222 sq. ft.
Count
4 Cars
Entry Location
Front, Rear
First Floor
10'
Primary Pitch
1.5 on 12
Secondary Pitch
1 on 12
Framing Type
Stick
Total Heated Area
2,890 sq. ft.
1st Floor
2,890 sq. ft.
Bedrooms
3
Full bathrooms
2
Half bathrooms
1
Standard Foundations
Slab
Exterior Walls
2x6
Width
122' 0"
Depth
63' 0"
Max Ridge Height
21' 8"
Type
Standard, RV Garage
Area
3222 sq. ft.
Count
4 Cars
Entry Location
Front, Rear
First Floor
10'
Primary Pitch
1.5 on 12
Secondary Pitch
1 on 12
Framing Type
Stick