
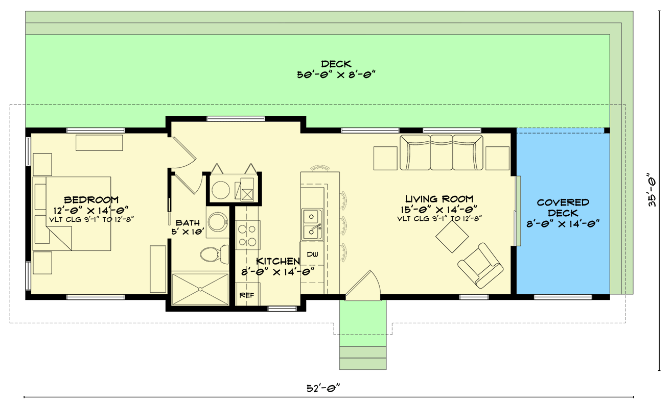
Total Heated Area
644 sq. ft.
1st Floor
644 sq. ft.
Deck
629 sq. ft.
Bedrooms
1
Full bathrooms
1
Standard Foundations
Crawl
Exterior Walls
2x4
Width
52' 0"
Depth
35' 0"
Max Ridge Height
16' 0"
First Floor
9' 1"
Room
Ceiling Type
Height
Living Room
Vaulted
9' 1''
Primary Bedroom
Vaulted
9' 1''
Primary Pitch
3 on 12
Total Heated Area
644 sq. ft.
1st Floor
644 sq. ft.
Deck
629 sq. ft.
Bedrooms
1
Full bathrooms
1
Standard Foundations
Crawl
Exterior Walls
2x4
Width
52' 0"
Depth
35' 0"
Max Ridge Height
16' 0"
First Floor
9' 1"
Room
Ceiling Type
Height
Living Room
Vaulted
9' 1''
Primary Bedroom
Vaulted
9' 1''
Primary Pitch
3 on 12