



Total Heated Area
3,321 sq. ft.
1st Floor
2,420 sq. ft.
2nd Floor
901 sq. ft.
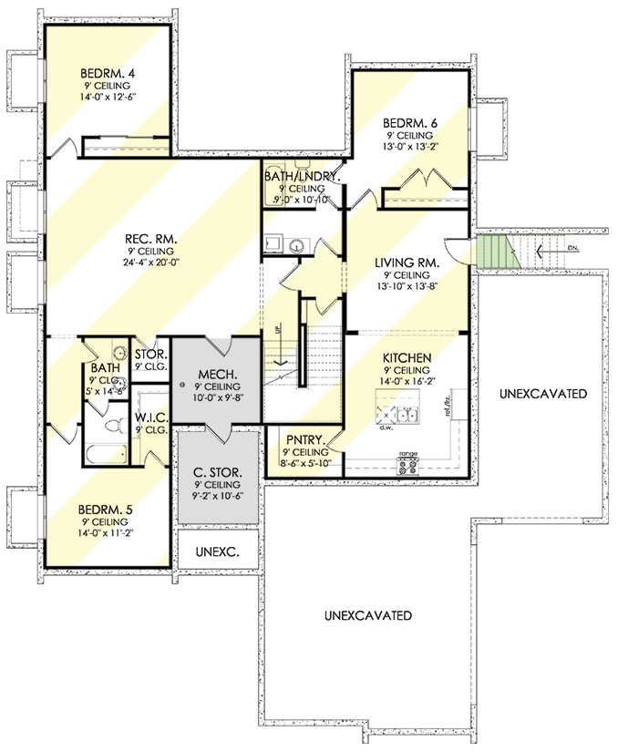
Optional Lower Level
2,015 sq. ft.
Loft
226 sq. ft.
Apartment
857 sq. ft.
Porch, Front
150 sq. ft.
Deck
364 sq. ft.
Bedrooms
3, 4, 5, or 6
Full bathrooms
3, 4, or 5
Half bathrooms
1
Standard Foundations
Crawl, Slab
Exterior Walls
2x6
Width
67' 0"
Depth
83' 8"
Type
Attached
Area
1064 sq. ft.
Count
3 Cars
Entry Location
Front, Side
Lower Level
9'
First Floor
10'
Second Floor
8'
Total Heated Area
3,321 sq. ft.
1st Floor
2,420 sq. ft.
2nd Floor
901 sq. ft.
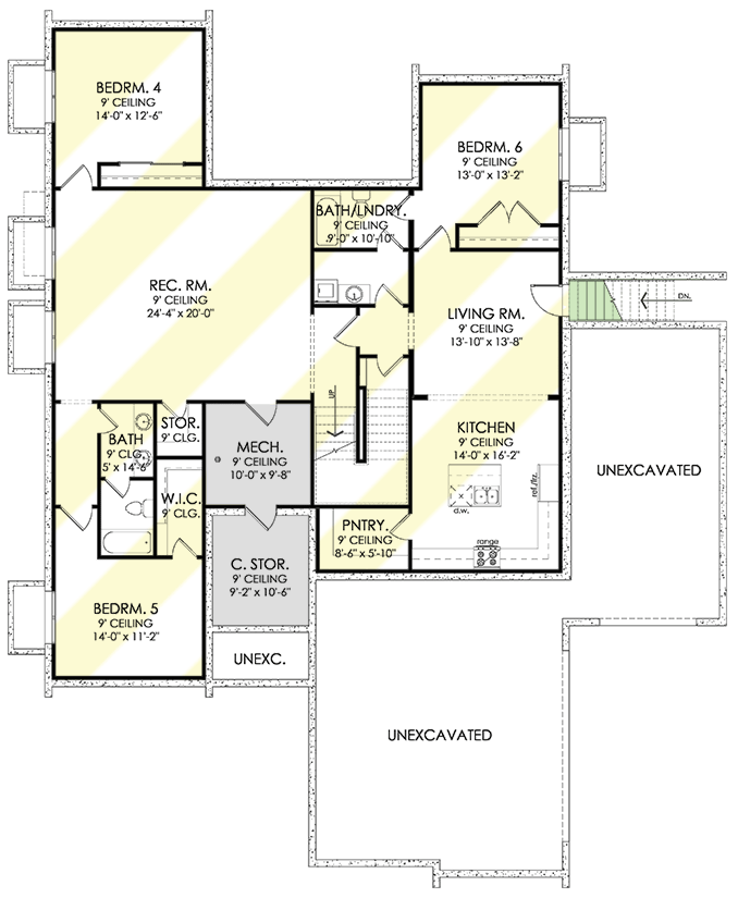
Optional Lower Level
2,015 sq. ft.
Loft
226 sq. ft.
Apartment
857 sq. ft.
Porch, Front
150 sq. ft.
Deck
364 sq. ft.
Bedrooms
3, 4, 5, or 6
Full bathrooms
3, 4, or 5
Half bathrooms
1
Standard Foundations
Crawl, Slab
Exterior Walls
2x6
Width
67' 0"
Depth
83' 8"
Type
Attached
Area
1064 sq. ft.
Count
3 Cars
Entry Location
Front, Side
Lower Level
9'
First Floor
10'
Second Floor
8'