

Total Heated Area
2,751 sq. ft.
1st Floor
1,955 sq. ft.
2nd Floor
796 sq. ft.
Porch, Front
36 sq. ft.
Porch, Rear
493 sq. ft.
Bedrooms
3 or 4
Full bathrooms
3
Standard Foundations
Slab
Exterior Walls
2x4
Optional Type(s)
2x6
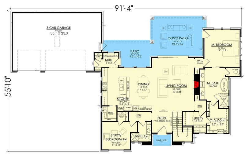
Width
91' 4"
Depth
55' 10"
Max Ridge Height
33' 2"
Type
Attached
Area
866 sq. ft.
Count
3 Cars
Entry Location
Front
First Floor
10'
Second Floor
9'
Primary Pitch
12 on 12
Secondary Pitch
10 on 10
Framing Type
Stick
Total Heated Area
2,751 sq. ft.
1st Floor
1,955 sq. ft.
2nd Floor
796 sq. ft.
Porch, Front
36 sq. ft.
Porch, Rear
493 sq. ft.
Bedrooms
3 or 4
Full bathrooms
3
Standard Foundations
Slab
Exterior Walls
2x4
Optional Type(s)
2x6
Width
91' 4"
Depth
55' 10"
Max Ridge Height
33' 2"
Type
Attached
Area
866 sq. ft.
Count
3 Cars
Entry Location
Front
First Floor
10'
Second Floor
9'
Primary Pitch
12 on 12
Secondary Pitch
10 on 10
Framing Type
Stick