

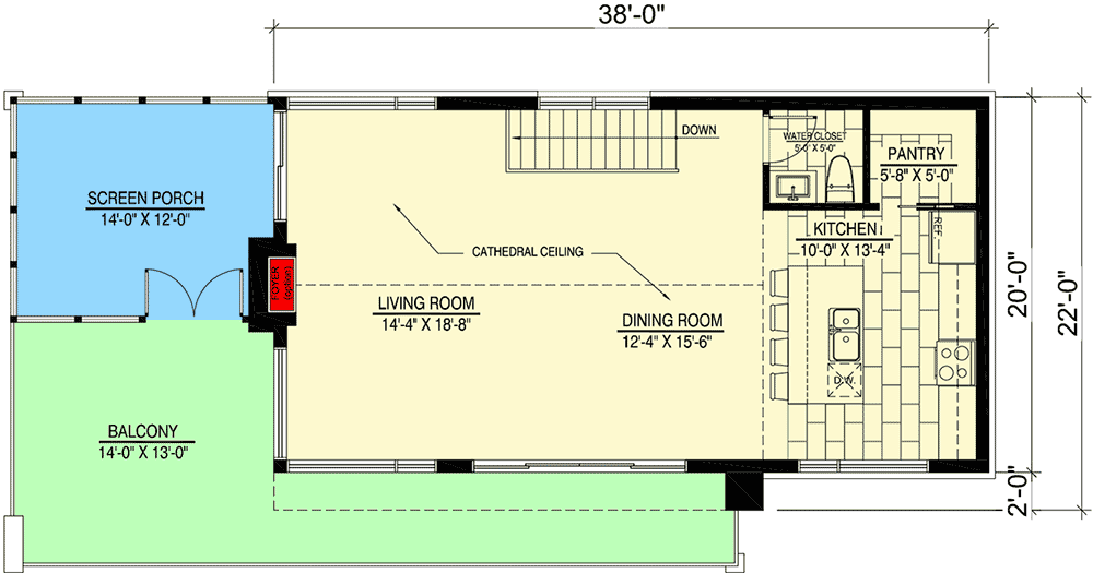
Total Heated Area
1,559 sq. ft.
1st Floor
799 sq. ft.
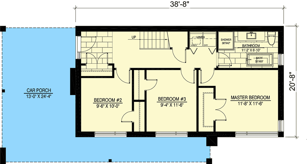
2nd Floor
760 sq. ft.
Carport
341 sq. ft.
Bedrooms
3
Full bathrooms
1
Half bathrooms
1
Standard Foundations
Basement
Exterior Walls
2x6
Width
38' 8"
Depth
20' 8"
Max Ridge Height
27' 6"
First Floor
8'
Primary Pitch
8 on 12
Framing Type
Truss
Total Heated Area
1,559 sq. ft.
1st Floor
799 sq. ft.
2nd Floor
760 sq. ft.
Carport
341 sq. ft.
Bedrooms
3
Full bathrooms
1
Half bathrooms
1
Standard Foundations
Basement
Exterior Walls
2x6
Width
38' 8"
Depth
20' 8"
Max Ridge Height
27' 6"
First Floor
8'
Primary Pitch
8 on 12
Framing Type
Truss