
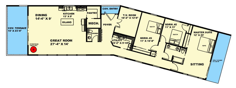
Total Heated Area
2,110 sq. ft.
1st Floor
2,110 sq. ft.
Bedrooms
3
Full bathrooms
1
Half bathrooms
1
Standard Foundations
Slab
Exterior Walls
2x6
Width
107' 0"
Depth
37' 3"
Max Ridge Height
13' 7"
First Floor
8' 8"
Framing Type
Truss
Total Heated Area
2,110 sq. ft.
1st Floor
2,110 sq. ft.
Bedrooms
3
Full bathrooms
1
Half bathrooms
1
Standard Foundations
Slab
Exterior Walls
2x6
Width
107' 0"
Depth
37' 3"
Max Ridge Height
13' 7"
First Floor
8' 8"
Framing Type
Truss