

Total Heated Area
2,200 sq. ft.
1st Floor
1,640 sq. ft.
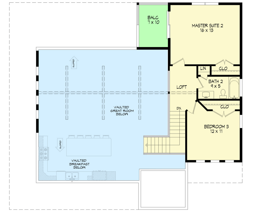
2nd Floor
560 sq. ft.
Porch, Combined
782 sq. ft.
Bedrooms
3
Full bathrooms
2
Half bathrooms
1
Standard Foundations
Crawl, Slab
Exterior Walls
2x6
Width
52' 2"
Depth
46' 6"
Max Ridge Height
26' 8"
Primary Pitch
10 on 12
Framing Type
Stick
Total Heated Area
2,200 sq. ft.
1st Floor
1,640 sq. ft.
2nd Floor
560 sq. ft.
Porch, Combined
782 sq. ft.
Bedrooms
3
Full bathrooms
2
Half bathrooms
1
Standard Foundations
Crawl, Slab
Exterior Walls
2x6
Width
52' 2"
Depth
46' 6"
Max Ridge Height
26' 8"
Primary Pitch
10 on 12
Framing Type
Stick