

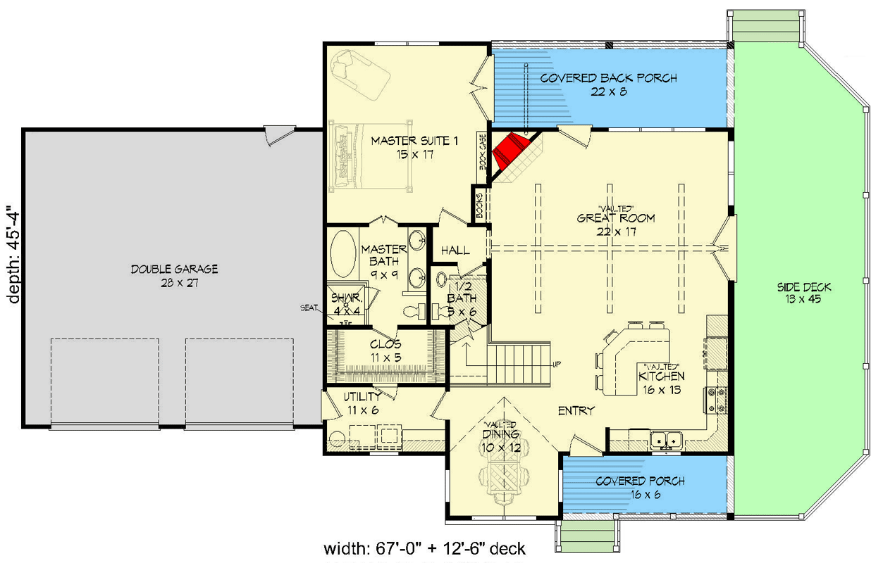
Total Heated Area
1,854 sq. ft.
1st Floor
1,354 sq. ft.
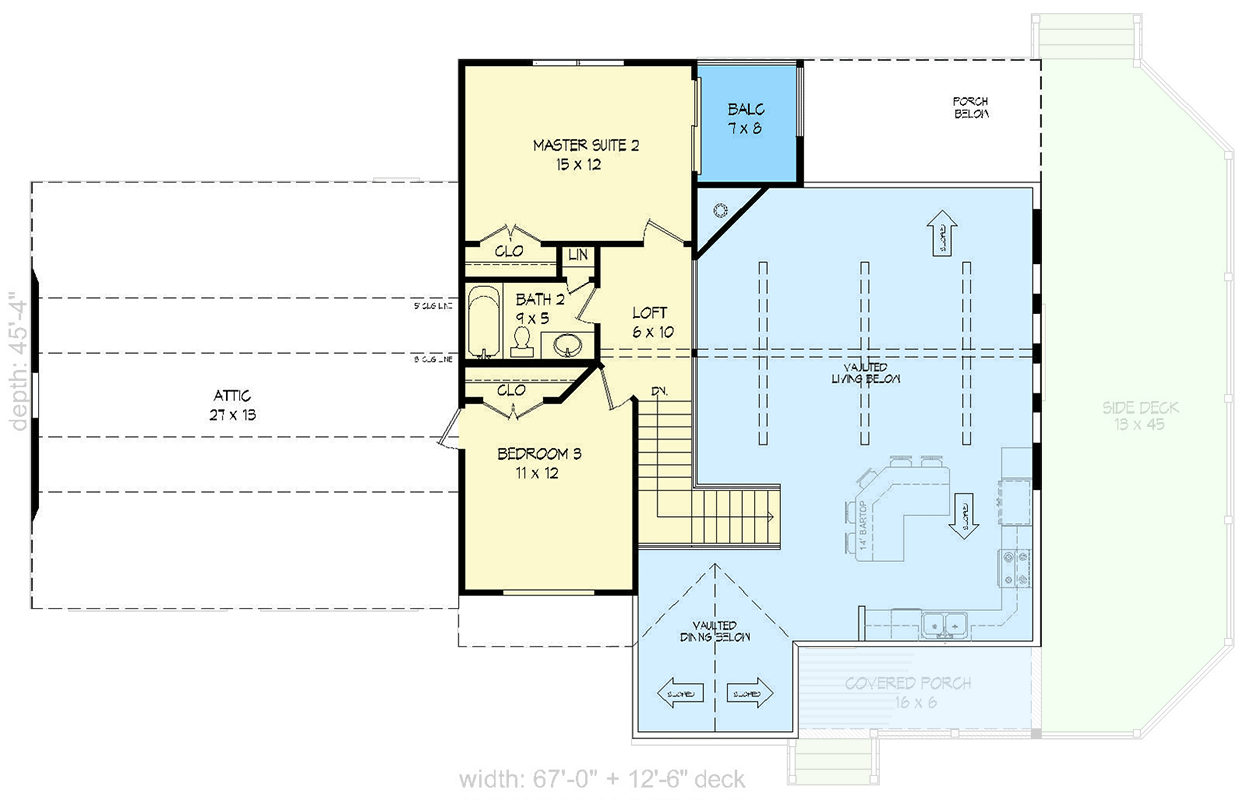
2nd Floor
500 sq. ft.
Bedrooms
4
Full bathrooms
4
Standard Foundations
Walkout
Exterior Walls
2x6
Width
61' 6"
Depth
61' 11"
Max Ridge Height
22' 9"
Type
Attached, Drive Under
Count
2 Cars
Entry Location
Side
Lower Level
9'
First Floor
10'
Primary Pitch
9 on 12
Secondary Pitch
5 on 12
Framing Type
Stick
Total Heated Area
1,854 sq. ft.
1st Floor
1,354 sq. ft.
2nd Floor
500 sq. ft.
Bedrooms
4
Full bathrooms
4
Standard Foundations
Walkout
Exterior Walls
2x6
Width
61' 6"
Depth
61' 11"
Max Ridge Height
22' 9"
Type
Attached, Drive Under
Count
2 Cars
Entry Location
Side
Lower Level
9'
First Floor
10'
Primary Pitch
9 on 12
Secondary Pitch
5 on 12
Framing Type
Stick