



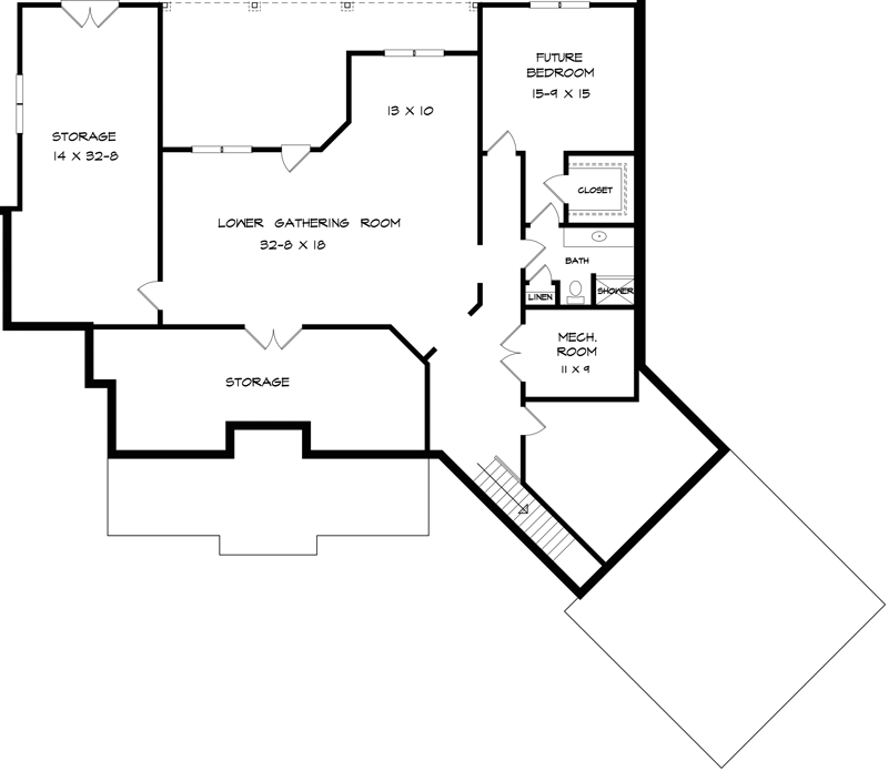
Total Heated Area
2,780 sq. ft.
1st Floor
2,780 sq. ft.
Bonus
432 sq. ft.
Bedrooms
3 or 4
Full bathrooms
2
Half bathrooms
1
Standard Foundations
Crawl, Slab, Walkout
Exterior Walls
2x4
Width
91' 5"
Depth
79' 0"
Max Ridge Height
23' 8"
Type
Attached
Area
535 sq. ft.
Count
2 Cars
Entry Location
Courtyard
First Floor
9'
Primary Pitch
6 on 12
Secondary Pitch
12 on 12
Framing Type
Stick
Total Heated Area
2,780 sq. ft.
1st Floor
2,780 sq. ft.
Bonus
432 sq. ft.
Bedrooms
3 or 4
Full bathrooms
2
Half bathrooms
1
Standard Foundations
Crawl, Slab, Walkout
Exterior Walls
2x4
Width
91' 5"
Depth
79' 0"
Max Ridge Height
23' 8"
Type
Attached
Area
535 sq. ft.
Count
2 Cars
Entry Location
Courtyard
First Floor
9'
Primary Pitch
6 on 12
Secondary Pitch
12 on 12
Framing Type
Stick