


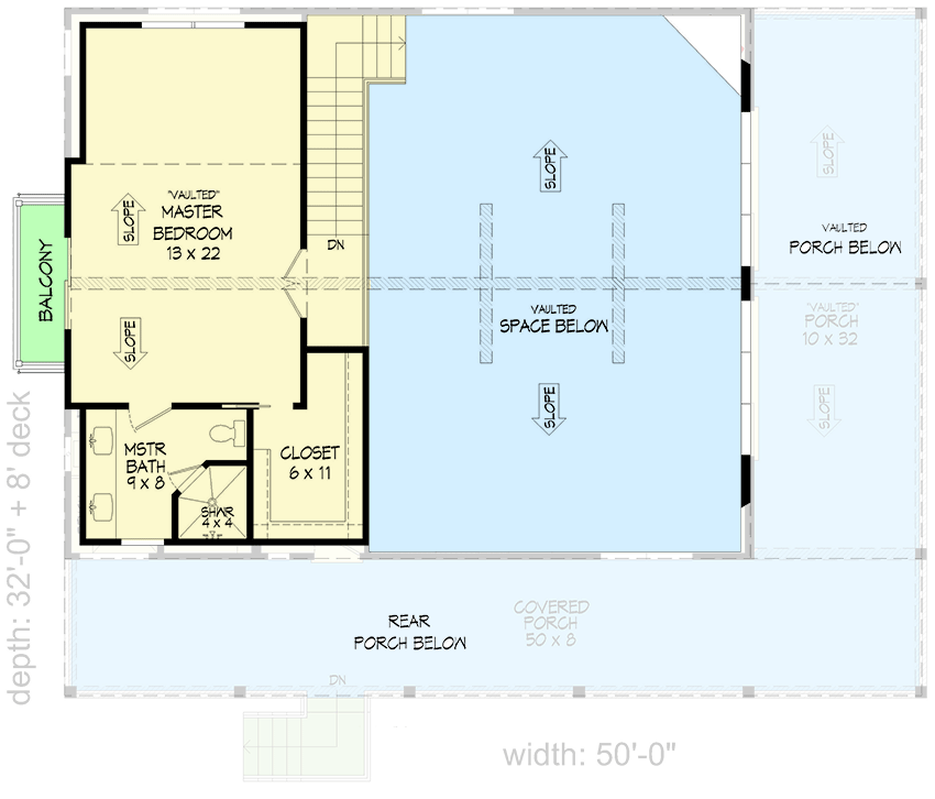
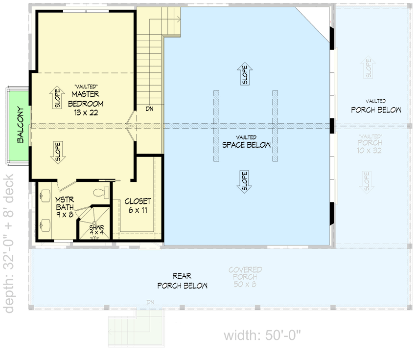
Total Heated Area
1,736 sq. ft.
1st Floor
1,280 sq. ft.
2nd Floor
456 sq. ft.
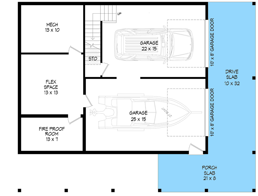
Basement Unfinished
1,280 sq. ft.
Porch, Rear
400 sq. ft.
Balcony / Veranda
30 sq. ft.
Bedrooms
2
Full bathrooms
2
Half bathrooms
1
Standard Foundations
Walkout
Exterior Walls
2x4
Optional Type(s)
2x6
Width
50' 0"
Depth
40' 0"
Max Ridge Height
26' 10"
Type
Attached, Drive Under
Count
2 Cars
Entry Location
Side
Lower Level
10'
First Floor
9'
Second Floor
9'
Primary Pitch
12 on 12
Secondary Pitch
3 on 12
Framing Type
Stick
Total Heated Area
1,736 sq. ft.
1st Floor
1,280 sq. ft.
2nd Floor
456 sq. ft.
Basement Unfinished
1,280 sq. ft.
Porch, Rear
400 sq. ft.
Balcony / Veranda
30 sq. ft.
Bedrooms
2
Full bathrooms
2
Half bathrooms
1
Standard Foundations
Walkout
Exterior Walls
2x4
Optional Type(s)
2x6
Width
50' 0"
Depth
40' 0"
Max Ridge Height
26' 10"
Type
Attached, Drive Under
Count
2 Cars
Entry Location
Side
Lower Level
10'
First Floor
9'
Second Floor
9'
Primary Pitch
12 on 12
Secondary Pitch
3 on 12
Framing Type
Stick