


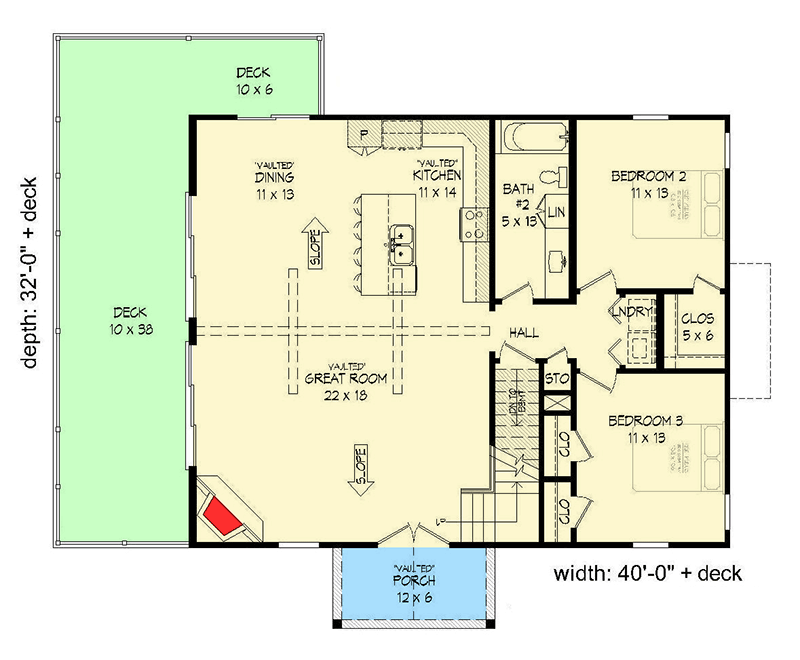
Total Heated Area
1,736 sq. ft.
1st Floor
1,280 sq. ft.
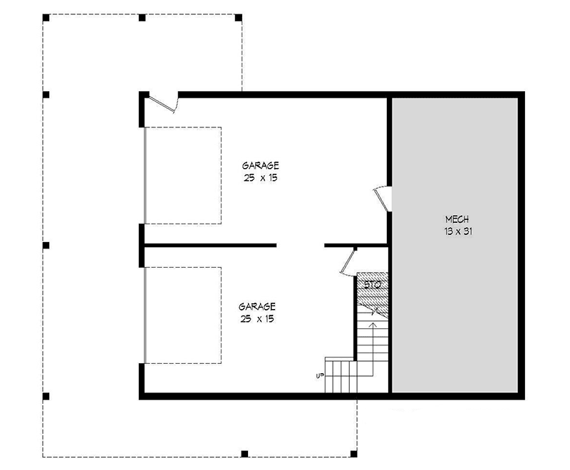
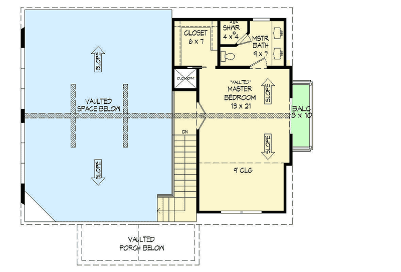
2nd Floor
456 sq. ft.
Deck & Porch
542 sq. ft.
Bedrooms
3
Full bathrooms
2
Standard Foundations
Walkout
Exterior Walls
2x4
Optional Type(s)
2x6
Width
40' 0"
Depth
32' 0"
Max Ridge Height
26' 10"
Type
Attached, Drive Under
Count
2 Cars
Entry Location
Side
First Floor
10'
Second Floor
8'
Primary Pitch
12 on 12
Total Heated Area
1,736 sq. ft.
1st Floor
1,280 sq. ft.
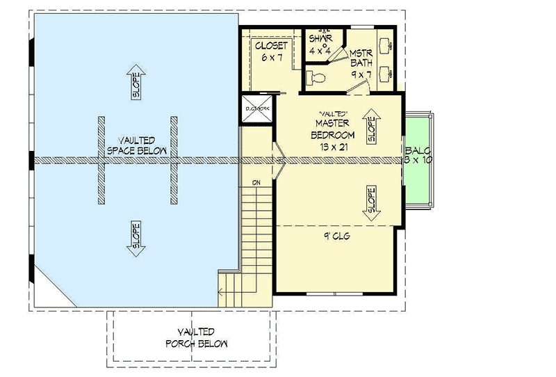
2nd Floor
456 sq. ft.
Deck & Porch
542 sq. ft.
Bedrooms
3
Full bathrooms
2
Standard Foundations
Walkout
Exterior Walls
2x4
Optional Type(s)
2x6
Width
40' 0"
Depth
32' 0"
Max Ridge Height
26' 10"
Type
Attached, Drive Under
Count
2 Cars
Entry Location
Side
First Floor
10'
Second Floor
8'
Primary Pitch
12 on 12