

Total Heated Area
1,417 sq. ft.
1st Floor
608 sq. ft.
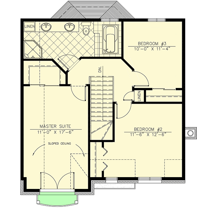
2nd Floor
809 sq. ft.
Basement Unfinished
608 sq. ft.
Porch, Front
24 sq. ft.
Bedrooms
3
Full bathrooms
1
Half bathrooms
1
Standard Foundations
Basement
Exterior Walls
2x6
Width
28' 0"
Depth
32' 6"
Max Ridge Height
32' 6"
Type
Attached
Area
219 sq. ft.
Count
1 Cars
Entry Location
Front
First Floor
8'
Second Floor
8'
Primary Pitch
10 on 12
Framing Type
Truss
Total Heated Area
1,417 sq. ft.
1st Floor
608 sq. ft.
2nd Floor
809 sq. ft.
Basement Unfinished
608 sq. ft.
Porch, Front
24 sq. ft.
Bedrooms
3
Full bathrooms
1
Half bathrooms
1
Standard Foundations
Basement
Exterior Walls
2x6
Width
28' 0"
Depth
32' 6"
Max Ridge Height
32' 6"
Type
Attached
Area
219 sq. ft.
Count
1 Cars
Entry Location
Front
First Floor
8'
Second Floor
8'
Primary Pitch
10 on 12
Framing Type
Truss