


Total Heated Area
2,135 sq. ft.
1st Floor
1,148 sq. ft.
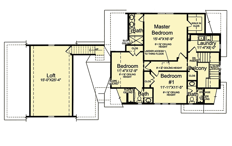
2nd Floor
987 sq. ft.
Basement Unfinished
1,148 sq. ft.
Bonus
405 sq. ft.
Porch, Front
100 sq. ft.
Screened Porch
159 sq. ft.
Bedrooms
3
Full bathrooms
3
Half bathrooms
1
Standard Foundations
Basement
Exterior Walls
2x4
Width
77' 6"
Depth
37' 5"
Max Ridge Height
33' 0"
Type
Attached
Area
748 sq. ft.
Count
3 Cars
Entry Location
Front
First Floor
9'
Second Floor
8'
Primary Pitch
10 on 12
Secondary Pitch
4 on 12
Framing Type
Truss
Total Heated Area
2,135 sq. ft.
1st Floor
1,148 sq. ft.
2nd Floor
987 sq. ft.
Basement Unfinished
1,148 sq. ft.
Bonus
405 sq. ft.
Porch, Front
100 sq. ft.
Screened Porch
159 sq. ft.
Bedrooms
3
Full bathrooms
3
Half bathrooms
1
Standard Foundations
Basement
Exterior Walls
2x4
Width
77' 6"
Depth
37' 5"
Max Ridge Height
33' 0"
Type
Attached
Area
748 sq. ft.
Count
3 Cars
Entry Location
Front
First Floor
9'
Second Floor
8'
Primary Pitch
10 on 12
Secondary Pitch
4 on 12
Framing Type
Truss