


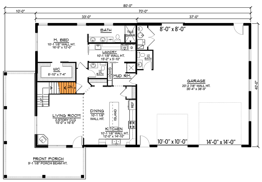
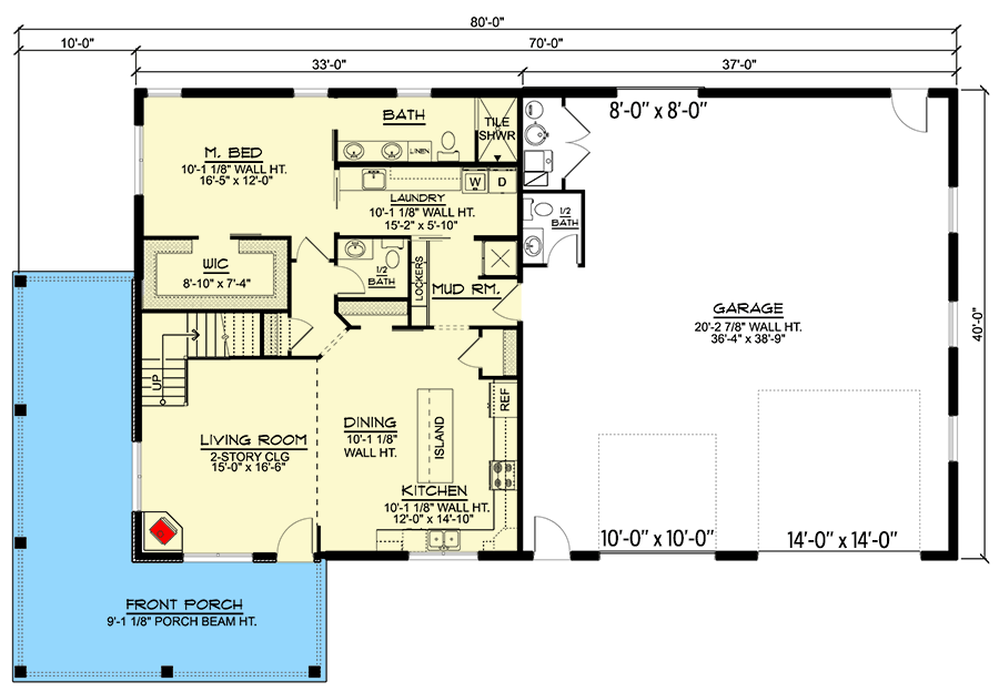
Total Heated Area
2,311 sq. ft.
1st Floor
1,320 sq. ft.
2nd Floor
991 sq. ft.
Porch, Front
500 sq. ft.
Bedrooms
3
Full bathrooms
2
Half bathrooms
1
Standard Foundations
Slab
Exterior Walls
2x6
Width
80' 0"
Depth
50' 0"
Max Ridge Height
27' 5"
Type
Attached
Area
1480 sq. ft.
Count
2 Cars
Entry Location
Front
First Floor
10'
Second Floor
9'
Primary Pitch
4 on 12
Framing Type
Truss
Total Heated Area
2,311 sq. ft.
1st Floor
1,320 sq. ft.
2nd Floor
991 sq. ft.
Porch, Front
500 sq. ft.
Bedrooms
3
Full bathrooms
2
Half bathrooms
1
Standard Foundations
Slab
Exterior Walls
2x6
Width
80' 0"
Depth
50' 0"
Max Ridge Height
27' 5"
Type
Attached
Area
1480 sq. ft.
Count
2 Cars
Entry Location
Front
First Floor
10'
Second Floor
9'
Primary Pitch
4 on 12
Framing Type
Truss