

We also include a list of building specifications, and notes for each page, with any important info the builder may need.
Total Heated Area
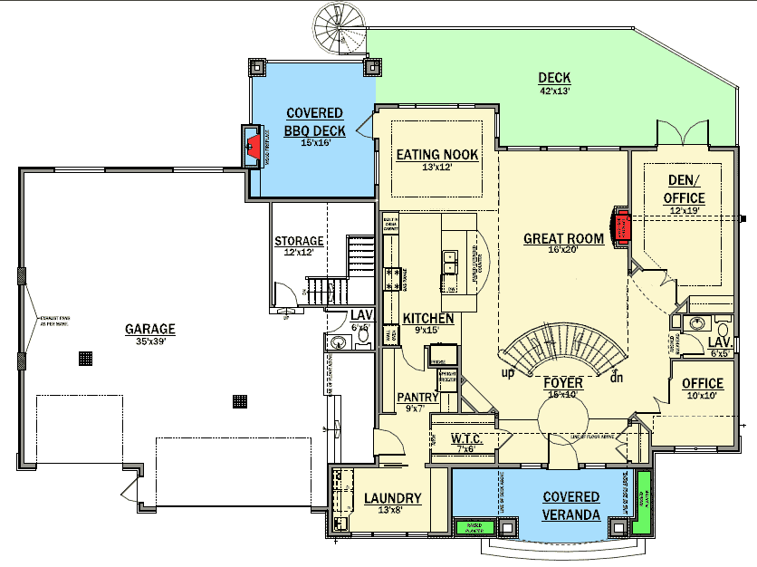
3,170 sq. ft.
1st Floor
1,765 sq. ft.
2nd Floor
1,405 sq. ft.
Basement Unfinished
1,449 sq. ft.
Porch, Front
100 sq. ft.
Deck
722 sq. ft.
Bedrooms
1, 2, or 3
Full bathrooms
1 or 2
Half bathrooms
1 or 2
Standard Foundations
Walkout
Exterior Walls
2x6
Width
84' 0"
Depth
65' 0"
Max Ridge Height
35' 7"
Type
Attached
Area
1335 sq. ft.
Count
3 Cars
Entry Location
Front
First Floor
10'
Second Floor
9'
Primary Pitch
8 on 12
Framing Type
Truss
Total Heated Area
3,170 sq. ft.
1st Floor
1,765 sq. ft.
2nd Floor
1,405 sq. ft.
Basement Unfinished
1,449 sq. ft.
Porch, Front
100 sq. ft.
Deck
722 sq. ft.
Bedrooms
1, 2, or 3
Full bathrooms
1 or 2
Half bathrooms
1 or 2
Standard Foundations
Walkout
Exterior Walls
2x6
Width
84' 0"
Depth
65' 0"
Max Ridge Height
35' 7"
Type
Attached
Area
1335 sq. ft.
Count
3 Cars
Entry Location
Front
First Floor
10'
Second Floor
9'
Primary Pitch
8 on 12
Framing Type
Truss