


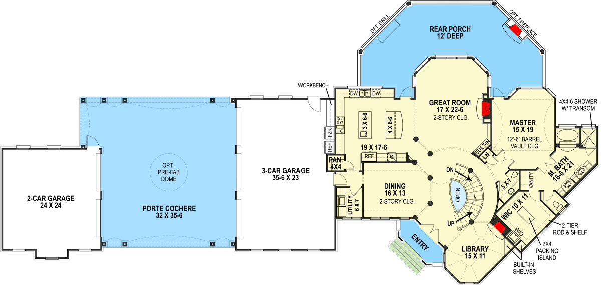
Total Heated Area
3,302 sq. ft.
1st Floor
2,201 sq. ft.
2nd Floor
1,101 sq. ft.
Optional Lower Level
1,707 sq. ft.
Balcony / Veranda
476 sq. ft.
Bedrooms
4, 5, or 6
Full bathrooms
4, 5, or 6
Half bathrooms
1 or 2
Standard Foundations
Slab
Exterior Walls
2x4
Width
143' 0"
Depth
68' 0"
Max Ridge Height
40' 0"
Type
Attached
Area
1462 sq. ft.
Count
5 Cars
Entry Location
Front
Lower Level
9'
First Floor
10'
Second Floor
9'
Total Heated Area
3,302 sq. ft.
1st Floor
2,201 sq. ft.
2nd Floor
1,101 sq. ft.
Optional Lower Level
1,707 sq. ft.
Balcony / Veranda
476 sq. ft.
Bedrooms
4, 5, or 6
Full bathrooms
4, 5, or 6
Half bathrooms
1 or 2
Standard Foundations
Slab
Exterior Walls
2x4
Width
143' 0"
Depth
68' 0"
Max Ridge Height
40' 0"
Type
Attached
Area
1462 sq. ft.
Count
5 Cars
Entry Location
Front
Lower Level
9'
First Floor
10'
Second Floor
9'