Exclusive


Total Heated Area
4,023 sq. ft.
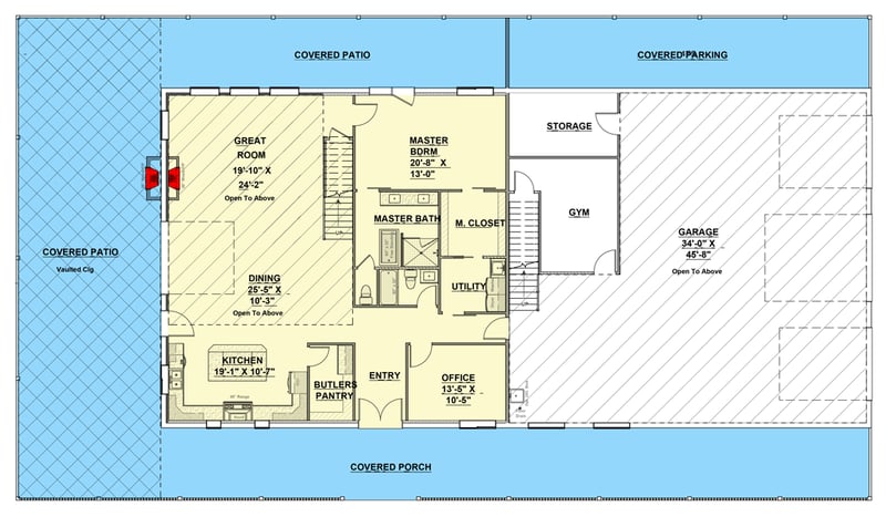
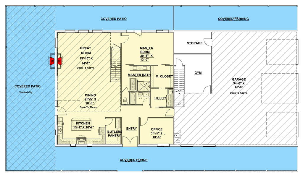
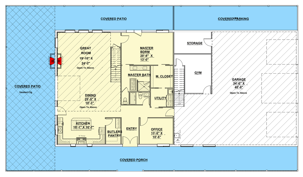
1st Floor
2,256 sq. ft.
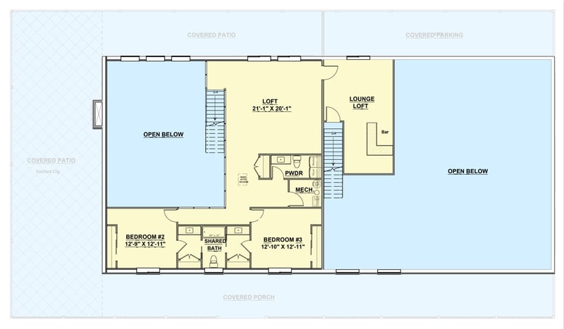
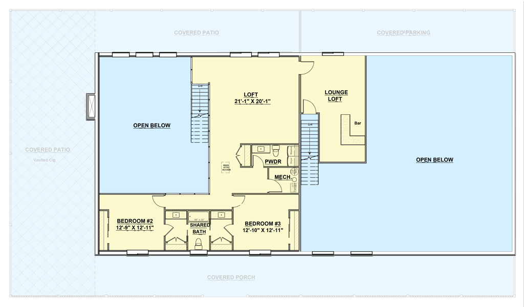
2nd Floor
1,767 sq. ft.
Bedrooms
3
Full bathrooms
3
Half bathrooms
1
Standard Foundations
Slab
Exterior Walls
2x6
Width
118' 0"
Depth
67' 0"
Max Ridge Height
28' 9"
Type
Attached
Area
2350 sq. ft.
Count
6 Cars
Entry Location
Side
First Floor
10'
Second Floor
9'
Primary Pitch
4 on 12
Framing Type
Stick And Truss
Total Heated Area
4,023 sq. ft.
1st Floor
2,256 sq. ft.
2nd Floor
1,767 sq. ft.
Bedrooms
3
Full bathrooms
3
Half bathrooms
1
Standard Foundations
Slab
Exterior Walls
2x6
Width
118' 0"
Depth
67' 0"
Max Ridge Height
28' 9"
Type
Attached
Area
2350 sq. ft.
Count
6 Cars
Entry Location
Side
First Floor
10'
Second Floor
9'
Primary Pitch
4 on 12
Framing Type
Stick And Truss