Exclusive




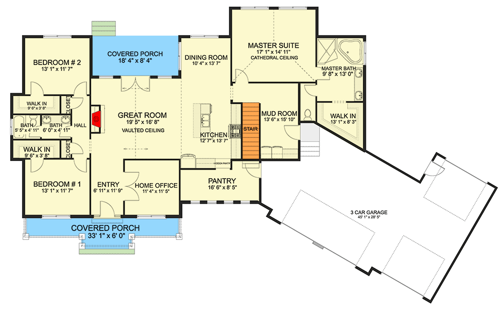
Total Heated Area
2,363 sq. ft.
1st Floor
2,363 sq. ft.
Optional Lower Level
2,499 sq. ft.
Bedrooms
3, 4, 5, or 6
Full bathrooms
2, 3, or 4
Standard Foundations
Basement
Exterior Walls
2x6
Width
102' 9"
Depth
62' 2"
Max Ridge Height
23' 4"
Type
Attached
Area
1025 sq. ft.
Count
2 or 3 Cars
Entry Location
Front, Side
Lower Level
9'
First Floor
9'
Primary Pitch
8 on 12
Framing Type
Truss
Total Heated Area
2,363 sq. ft.
1st Floor
2,363 sq. ft.
Optional Lower Level
2,499 sq. ft.
Bedrooms
3, 4, 5, or 6
Full bathrooms
2, 3, or 4
Standard Foundations
Basement
Exterior Walls
2x6
Width
102' 9"
Depth
62' 2"
Max Ridge Height
23' 4"
Type
Attached
Area
1025 sq. ft.
Count
2 or 3 Cars
Entry Location
Front, Side
Lower Level
9'
First Floor
9'
Primary Pitch
8 on 12
Framing Type
Truss