Exclusive




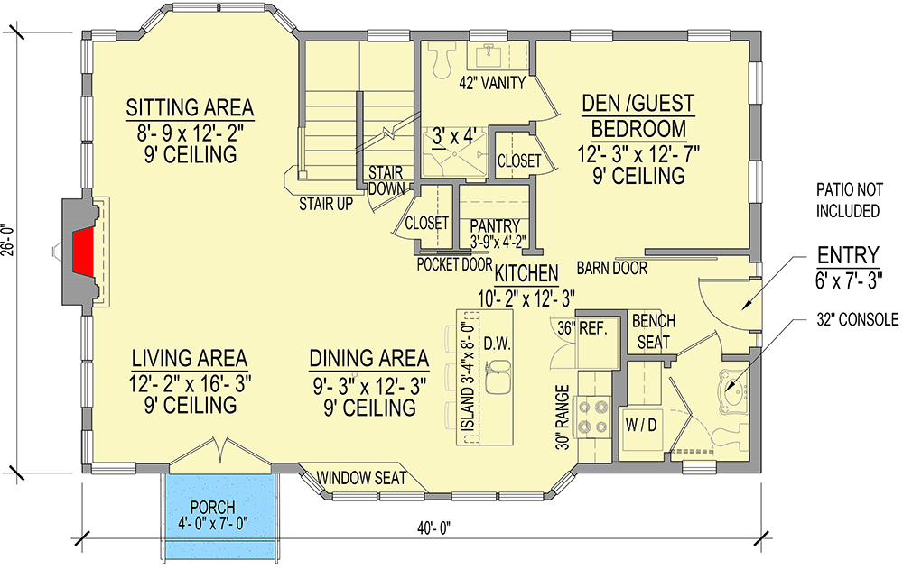
Total Heated Area
2,158 sq. ft.
1st Floor
1,085 sq. ft.
2nd Floor
1,073 sq. ft.
Optional Lower Level
1,040 sq. ft.
Porch, Combined
256 sq. ft.
Bedrooms
4, 5, or 6
Full bathrooms
3 or 4
Half bathrooms
1 or 2
Standard Foundations
Basement, Daylight
Exterior Walls
2x6
Width
26' 0"
Depth
40' 0"
Max Ridge Height
32' 3"
First Floor
9'
Second Floor
8'
Primary Pitch
10.75 on 12
Secondary Pitch
10 on 12
Framing Type
Truss
Total Heated Area
2,158 sq. ft.
1st Floor
1,085 sq. ft.
2nd Floor
1,073 sq. ft.
Optional Lower Level
1,040 sq. ft.
Porch, Combined
256 sq. ft.
Bedrooms
4, 5, or 6
Full bathrooms
3 or 4
Half bathrooms
1 or 2
Standard Foundations
Basement, Daylight
Exterior Walls
2x6
Width
26' 0"
Depth
40' 0"
Max Ridge Height
32' 3"
First Floor
9'
Second Floor
8'
Primary Pitch
10.75 on 12
Secondary Pitch
10 on 12
Framing Type
Truss