

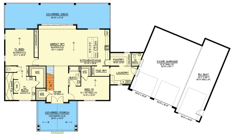
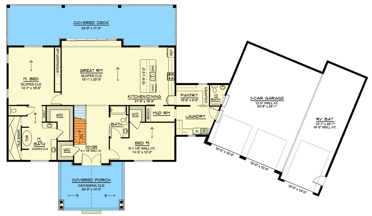
Total Heated Area
4,576 sq. ft.
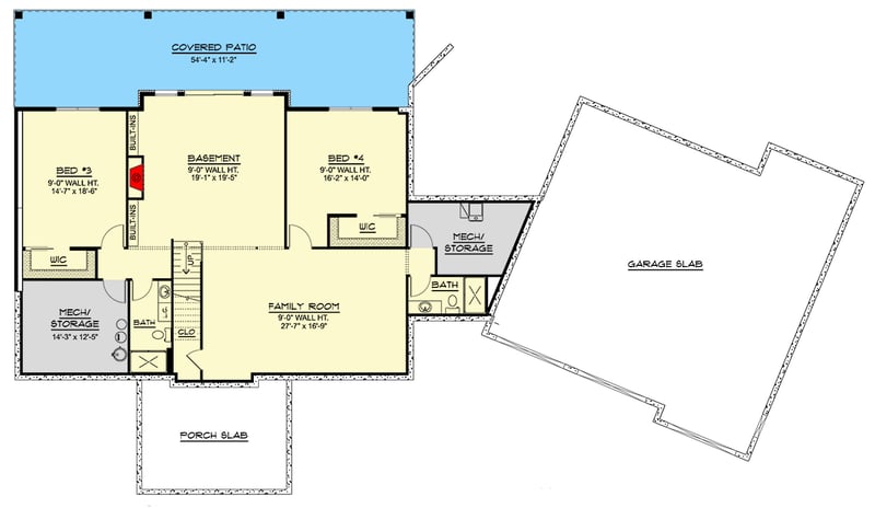
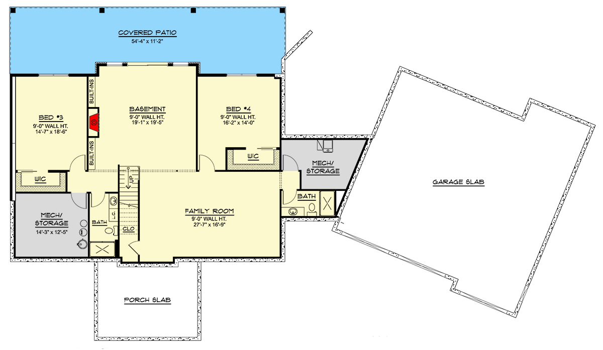
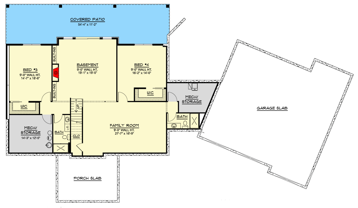
Lower Level
2,288 sq. ft.
1st Floor
2,288 sq. ft.
Covered Patio
662 sq. ft.
Porch, Front
288 sq. ft.
Deck
662 sq. ft.
Bedrooms
4
Full bathrooms
4
Half bathrooms
1
Standard Foundations
Walkout
Exterior Walls
2x6
Width
115' 2"
Depth
65' 0"
Max Ridge Height
19' 6"
Type
Standard, RV Garage, Attached
Area
1476 sq. ft.
Count
3 Cars
Entry Location
Front
Lower Level
9'
First Floor
9'
Primary Pitch
2 on 12
Secondary Pitch
6 on 12
Framing Type
Truss
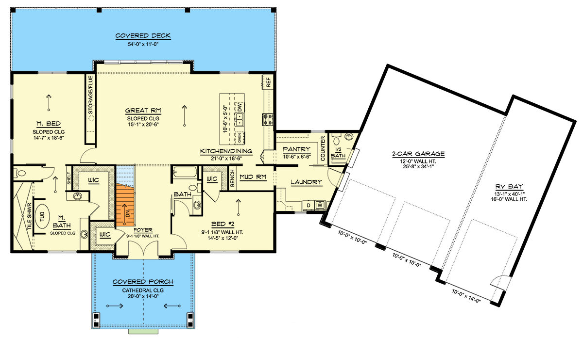
Total Heated Area
4,576 sq. ft.
Lower Level
2,288 sq. ft.
1st Floor
2,288 sq. ft.
Covered Patio
662 sq. ft.
Porch, Front
288 sq. ft.
Deck
662 sq. ft.
Bedrooms
4
Full bathrooms
4
Half bathrooms
1
Standard Foundations
Walkout
Exterior Walls
2x6
Width
115' 2"
Depth
65' 0"
Max Ridge Height
19' 6"
Type
Standard, RV Garage, Attached
Area
1476 sq. ft.
Count
3 Cars
Entry Location
Front
Lower Level
9'
First Floor
9'
Primary Pitch
2 on 12
Secondary Pitch
6 on 12
Framing Type
Truss